Prodej bytu, 3+1, 86 m²
Prodej bytu 3+1 s balkónem, 91,5 m²
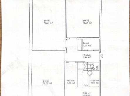
Nabízíme k prodeji prostorný byt v osobním vlastnictví o celkové výměře 91,5 m², o dispozici 3+1 s balkonem, sklepem a komorou. Dispozici je možné upravit na 4+1, což činí tuto nemovitost ideální pro rodinu, která hledá více prostoru. Byt se nachází ve 3. nadzemním podlaží udržovaného domu v klidné a vyhledávané lokalitě. Je před rekonstrukcí, takže si nový majitel může vytvořit interiér přesně podle svých představ. Dispozice: pokoj (20,59 m²) - možnost spojení/úpravy ložnice (16,04 m²) obývací pokoj (18,52 m²) jídelna (7,93 m²) kuchyně (4,45 m²) šatna (2,02 m²) koupelna (2,62 m²) samostatné WC (0,98 m²) balkon (3,68 m²) K bytu náleží sklepní kóje (cca 3 m²) a další komora v mezipatře (cca 2 m²) – ideální na sportovní výbavu, dětské věci či sezónní úložné věci. Kostelní ulice patří mezi klidné a stabilní části Varnsdorfu, kde žijí převážně dlouholetí obyvatelé. To přináší bezpečné, tiché a sousedské prostředí. V bezprostřední blízkosti najdete: základní školu, potraviny, restauraci, dětská hřiště. Parkování je možné přímo u domu. Tento byt nabízí přesně to, co dnes není samozřejmostí: prostor, soukromí a klidné prostředí. Ráda vám pomohu s financováním i kompletním procesem převodu. Pro sjednání termínu prohlídky mě neváhejte kontaktovat.


