Prodej - dům/vila, 150 m²
Rodinný dům, atypický, Vápenice
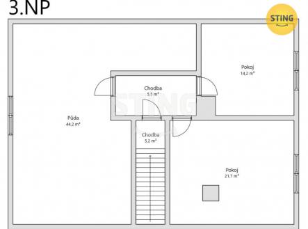
Nabízíme ke koupi atraktivní rodinný dům v obci Vápenice, zasazený do nádherné přírody Bílých Karpat s celoročním přístupem po asfaltové komunikaci. Dům prošel rekonstrukcí a je připraven k okamžitému užívání – vhodný jak pro trvalé bydlení, tak jako rekreační chalupa pro milovníky klidu a přírody nebo pro podnikatelské účely. Dispozice domu je atypická, nabízí dostatek prostoru pro rodinu i hosty. V přízemí je vstupní chodba, místnost s infrasaunou, masážní místnost a technické zázemí domu. Obytná část se nachází v I. NP. Tomuto patru dominuje prostorný obývací pokoj s jídelnou a kuchyní, odkud je také vstup na zastřešenou krytou terasu. V tomto patře se nacházejí také 2 samostatné pokoje, koupelna, WC a skladový prostor. V II. NP je samostatný pokoj, půdní prostor (lze využít jako další místnost). Na terase je posezení cca pro 10 osob, je zde zahradní gril a na zahradě také ohniště. Dům je vytápěn pomocí plynového kotle, lze také využít krbová kamna. Parkování je možné u domu. Nemovitost se nachází v tiché části obce, mimo hlavní silnici. Okolí je ideální pro vycházky, turistiku i cyklovýlety – z domu se můžete vydat přímo do přírody. Dům má udržovanou zahradu, příjezd po obecní komunikaci, dobré připojení na inženýrské sítě. Vápenice patří mezi nejklidnější a nejmalebnější obce v oblasti Bílých Karpat – ideální místo pro ty, kdo hledají odpočinek od ruchu města a čisté životní prostředí.


