Prodej - dům/vila, 111 m²
Prodej - domu/vily, 111 m²
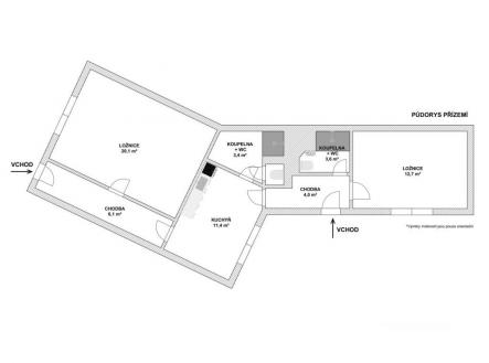
Valtice - jedna z nejžádanějších vinařských lokalit jižní Moravy. Právě zde nabízíme k prodeji rodinný dům, který díky svému dispozičnímu řešení nabízí široké možnosti využití – zejména pro vícegenerační bydlení, kombinaci bydlení a podnikání nebo částečný pronájem. Dům je rozdělen na dvě samostatné jednotky (4 apartmány), které lze využívat odděleně i jako jeden celek. Dispozice a uspořádání Apartmány 1 a 2: - vhodné jako hlavní obytná část domu - sdílená plně vybavená kuchyň - každý apartmán má vlastní koupelnu (sprchový kout, WC, umyvadlo) - možnost oddělení uzamykatelnými dveřmi Apartmány 3 a 4: - samostatný vstup a chodba - každý apartmán má vlastní kuchyňku a sociální zázemí - vhodné pro další členy rodiny, hosty nebo podnikání Nemovitost je v současnosti využívána ke krátkodobému pronájmu a je možné navázat na stávající provoz. Lokalita Valtice jsou součástí Lednicko-valtického areálu a patří mezi nejvyhledávanější lokality jižní Moravy. Nabízí kompletní občanskou vybavenost, výbornou dostupnost a široké možnosti volnočasových aktivit. Ráda vás provedu touto krásnou nemovitostí. Pro více informací nebo sjednání prohlídky mě neváhejte kontaktovat.


