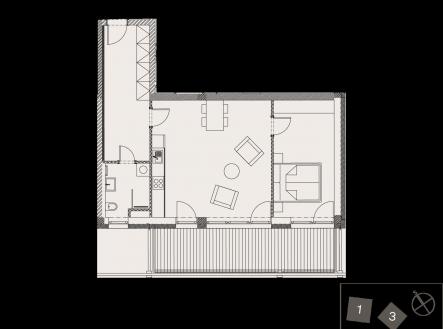
Prodej bytu, 2+kk, 62 m²
Rezidenci Štěpánov, Valašské Meziříčí, bytová jednotka 2+kk, 62,77 m2, balkon 16,91 m2
Představujeme vám Rezidenci Štěpánov ve Valašském Meziříčí, projekt čtyř moderních bytových domů, které propojují současnou architekturu s přírodou. Charakteristickými prvky jsou zelené střechy, dřevěné detaily a pnoucí rostliny, které přinášejí do každodenního života více zeleně a příjemného mikroklimatu. Celkem zde vzniká 56 bytových jednotek s dispozicí 1-4+kk, 2 nebytové prostory a 70 parkovacích míst v podzemní garáži. Důraz je kladen na kvalitní provedení, funkčnost a pohodlí. Obyvatelé ocení moderní dispozice a nadstandardní vybavení.


