Prodej - pozemek pro bydlení, 9 610 m²
Prodej pozemku 9.610 m²
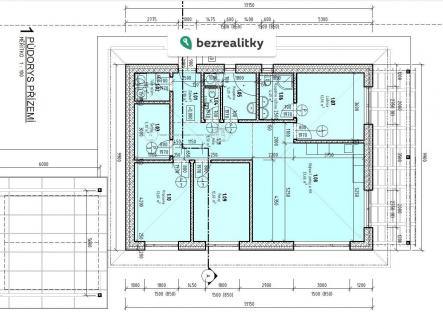
Do prodeje nabízíme developerský projekt: 16 stavebních pozemků včetně pravomocného stavebního povolením na výstavbu 16-ti RD v obci Úžice, okr. Mělník, Středočeský kraj. Jednotlivé stavební pozemky jsou o rozloze cca 600m2. Navržené domy jsou samostatně stojící přízemní domy se sedlovou střechou. Dispozičně se jedná a RD 4KK s terasou a carportem. Zastavěná plocha domu je 130 m2 (viz. půdorys 1. NP), užitná plocha 1.NP je 101,5m2, podkroví lze realizovat celé délce domu pochozí v šířce minimálně 2,5m s výškou 1,7m. Stavební pozemky jsou již zasíťované – aktuálně je vybudovaný obecní vodovod, kanalizace, EE, komunikace a chodníky, VO, optická síť. Buduje se zemní val, který pozemky odstiňuje od dálnice. Následně bude dokončeno i parkoviště. Pozemky dle LV 405, k.ú. Úžice u Kralup nad Vltavou (vyjma komunikace – poz.p.č. 464/20, který bude včetně veškerých IS a VO do správy obci Úžice) jsou v celkové výměře 9.610 m2 Projekt bude prodáván formou převodu obchodních podílů společnosti. Obec Úžice představuje zejména rodinné bydlení v poklidné atmosféře s výbornou dostupností do metropole. Obec nabízí blízkost okolní přírody, a přesto kompletní občanskou vybaveností v podobě pošty, ordinace praktického lékaře, základní a mateřské školy či hospůdky. V neposlední řadě oceníte nedaleký nájezd na dálnici D8, který nijak neomezuje klidné bydlení a nabízí pohodlný přístup k dopravní infrastruktuře. Tato nemovitost je určena výhradně přímým zájemcům o koupi. Na inzerát můžete také reagovat přímo na webu Bezrealitky: https://www.bezrealitky.cz/nemovitosti-byty-domy/930813-nabidka-prodej-pozemku-hlavni-uzice


