Pronájem - obchodní prostor, 360 m²
Pronájem obchodního prostoru 360 m², Ústí nad Labem-centrum
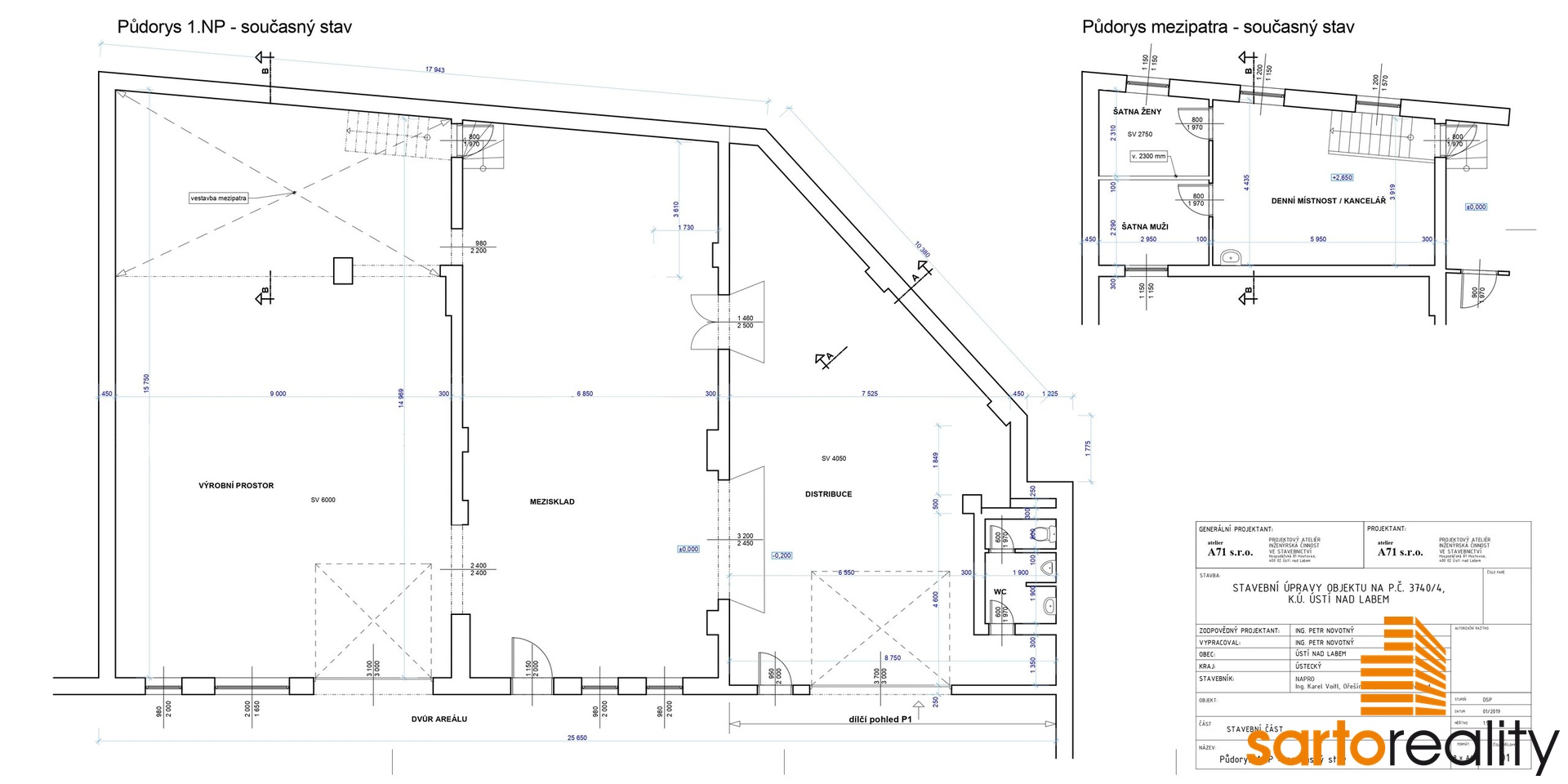
K dlouhodobému pronájmu Vám nabízíme obchodní a výrobní prostory, vhodné na velkoobchodní zastoupení firmy , lehkou výrobu, skladování nebo případnou servisní činnost. Tyto prostory jsou umístěné v obchodním areálu Sartopark, Žižkova 722/67, Ústí nad Labem, při hlavní komunikaci E442, na sjezdu dálnice D8 do centra Ústí nad Labem. V místě s výbornou dopravní obslužností a vysokou frekventovaností. Stěžejní info: * Velikost prostor - 360 m2 * El. proud - 230/400V * Výška prostor 4,0-6,0 m * Sekční vrata * Areál přístupný 24/7 * Možnost vyhrazených parkovacích míst V Sartoparku dlouhodobě sídlí významné firmy, např. Elfetex, Würth, VEKRA okna, Yamaha, sklad IKEA a další. Prostory jsou rozdělené na 3 propojené sekce, s možností vjezdu sekčními vraty. Po dohodě s možností dalších dílčích úprav. K dispozici od 3/2026. Více info rádi poskytneme při dalším jednání. Nájemce neplatí provizi! Cena na vyžádání.


