Prodej bytu, 4+1, 87 m²
Prodej bytu 4+1 po rekonstrukci o výměře 87 m2, Vinařská - Ústí nad Labem
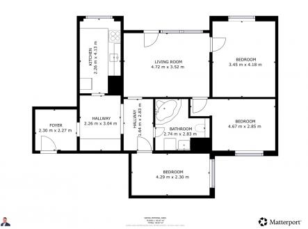
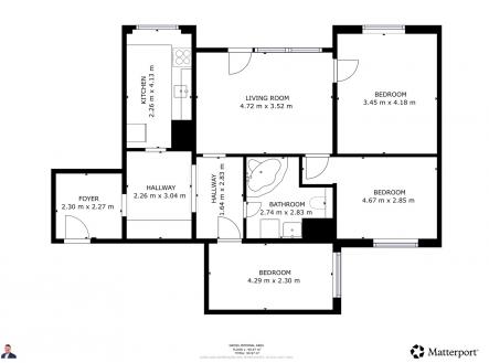
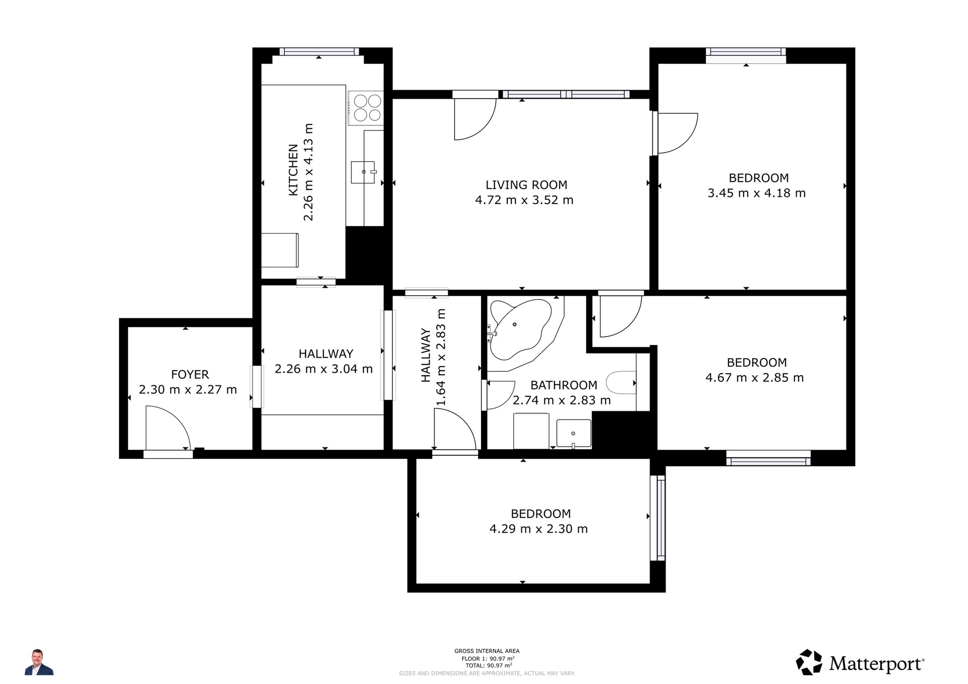
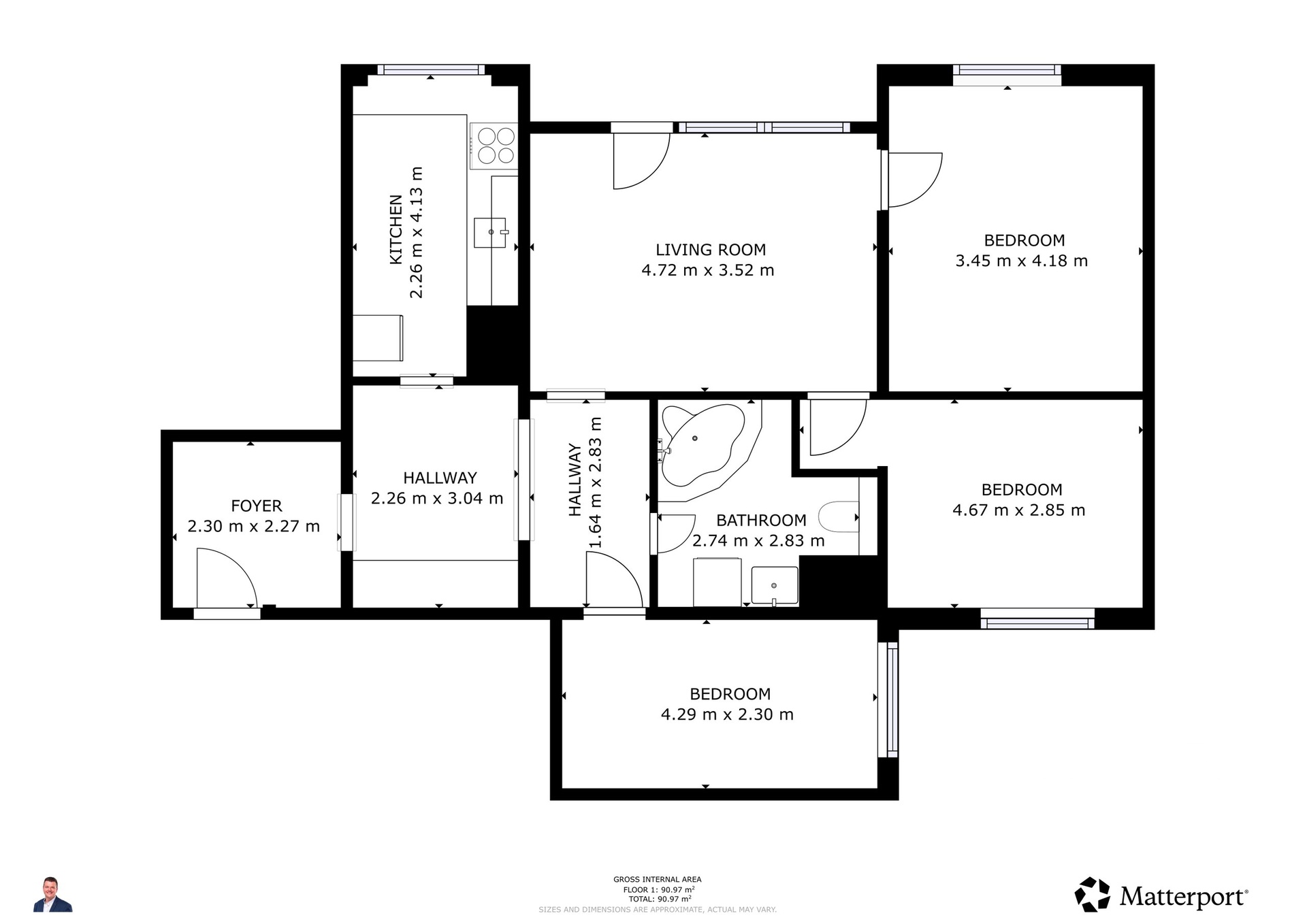
Ke koupi Vám nabízíme prostorný byt o dispozici 4+1 s výměrou 87 m2. Dispozice 4+1 nabízí ideální prostor jak pro rodinu, tak i pro pár, který hledá pohodlné bydlení bez dalších investic. Byt nabízí ložnici, dětský pokoj, prostornou chodbu, ze které se dostanete do moderní kuchyně, koupelny s vanou, tak i do obývacího pokoje. Součástí bytu je také velkorysá zasklená lodžie, který poskytuje příjemné místo pro ranní kávu nebo odpočinek po práci. Celý bytový dům prošel kompletní revitalizací včetně umístění nové výtahové kabiny. Společné prostory jsou v perfektním stavu a pravidelně udržovány. Vstup do domu je řešen moderním systémem s kombinací čipu a kamerového systému. Byt se nachází v ulici Vinařská v Ústí nad Labem, v klidné lokalitě s kompletní občanskou vybaveností v docházkové vzdálenosti. V okolí najdete základní i mateřskou školu, obchody, zastávky MHD, lékaře i dostatek zeleně pro volnočasové aktivity. Lokalita v centru obce poskytuje veškerou občanskou vybavenost na dosah, zatímco samotný byt nabízí klidné bydlení v moderním prostředí. Pokud hledáte nadstandardní, moderní a prostorné bydlení, které kombinuje výhody města s blízkostí přírody, tento byt je pro vás ideální volbou. K této nabídce máme připravenou kompletní dokumentaci, kterou vám rádi představíme ještě před prohlídkou. Navíc se můžete projít bytem pomocí virtuální prohlídky z pohodlí vašeho domova. Kontaktujte nás pro sjednání termínu prohlídky. Pokud hledáte moderní byt v dobré lokalitě, který můžete ihned nazývat domovem, tak tenhle byt rozhodně stojí za vaši pozornost.

