Prodej bytu, atypický, 159 m²
Jedinečná příležitost na zhotovení půdní bytové jednotky dle svých představ v centru Ústí nad Labem
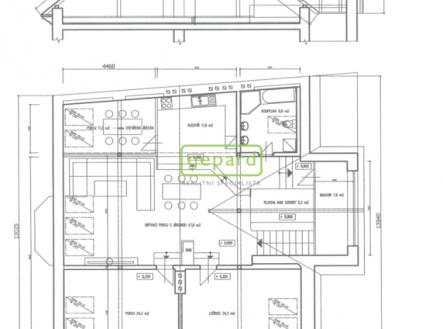
Ojedinělá příležitost v centru krajského města Ústí nad Labem. Nabízíme k prodeji půdní prostory se stavebním povolením v ulici Moskevská 1581/22, Ústí nad Labem (bytová jednotka č. 7). Tento prostor v centru Ústí nad Labem se nachází v pátém nadzemním podlaží bytového domu a představuje skvělou investiční příležitost či vlastní královské bydlení. Lze vybudovat jeden exkluzivní nadstandardní půdní byt s rozlohou dle prohlášení vlastníka 159,8 m2. Můžete si vybrat zdali budete chtít unikátní terasu a kochat se výhledem či se bez ní obejít. Doporučujeme využít služeb současné stavební firmy, která zhotovila ostatní bytové jednotky v tomto domě. Rozpočet na vyhotovení bez terasy činí 4,2 mil. Kč či s terasou ve výši 4,72 mil. Kč. Lokalita nabízí jedním slovem VŠE. Do 100 m od bytu se nachází namátkou kulturní a veřejný sál Hraničář, pošta, Billa, Teta, Alza, nespočet restaurací a obchodů. Do 700 m OC Forum (více než 100 obchodů s kinem Cinema City), divadlo, Univerzita Jana Evangelisty Purkyně s osmi fakultami, obchodní akademie a jazyková škola, magistrát, krajský úřad, banky, pojišťovny a desítky a desítky obchodů, restaurací a úřadů. V této lokalitě najdou ideální bydlení zájemci, kteří chtějí být vždy nablízku velkoměstu severu, netrávit dlouhý čas dojížděním za prací nebo pro ty, kteří hledají investiční příležitost, kapitálové zhodnocení a zároveň výnos z potencionálního pronájmu. Možností do budoucna je ovlivnit vybudování společného výtahu. V domě je nově zřízeno SVJ. Možnost přikoupit sklepní prostory. Vstup do budoucího bytu je z podesty mezi 4. a 5. N.P., součástí bytu je část schodiště mezi 4. a 5. N.P. a podesta mezi 4. a 5. N.P. Parkování možné na ulici před domem. Do budoucna možné vlastní parkovací místo u domu. Nechte se inspirovat a vytvořte si ideální prostor v srdci Ústí nad Labem. Neváhejte kontaktovat a zjistit na vlastní oči potenciál této nabídky. Uvedené výměry jsou orientační. V případě více zájemců bude nemovitost prodána nejlepší nabídce a majitel si vyhrazuje právo vybrat kupujícího na základě jím zvolených kritérií. Veškeré zveřejněné údaje obsažené v tomto inzerátu mají pouze informativní charakter a nejsou nabídkou ve smyslu § 1731 nebo § 1732 občanského zákoníku, ani se nejedná o veřejný příslib dle § 1733 občanského zákoníku.


