Prodej - dům/vila, 72 m²
Prodej rozestavěného domu se dvěma pozemky – KÚ Unhošť (okres Kladno)
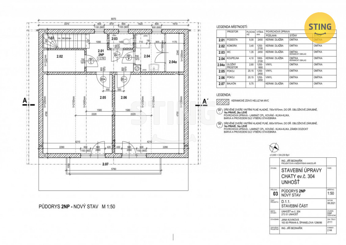
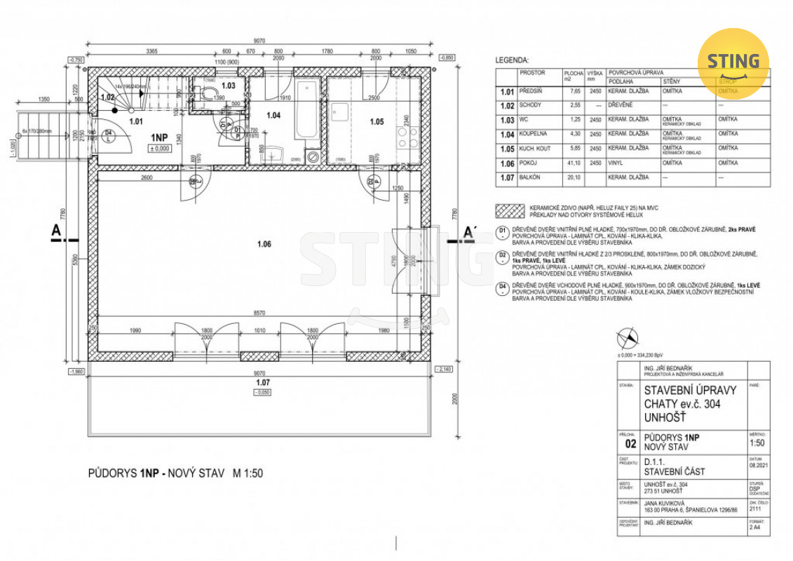
Nabízíme k prodeji rozestavěný dům o velikosti 72 m2 na souboru dvou pozemků o celkové výměře 1 151 m2 v klidné a velmi vyhledávané rekreační chatové oblasti u Dědkova Mlýna, v katastrálním území Unhošť (okr. Kladno), pouhých 20 km západně od Prahy. Na první parcele o velikosti 467 m2 se nachází dva dřevníky a rozestavěná chata s platným stav. povolením se zastavěnou plochou 72 m2. Objekt je ve stavu hrubé stavby z r. 2022 s plánovanou dispozicí: Přízemí: prostorný obývací pokoj s přirozeným světlem a krásným výhledem do údolí. Místnost pro kuchyňský kout, koupelna s toaletou (příprava na instalace) Patro: příprava pro 2 ložnice, šatnu, koupelnu Interiér je připraven k dokončení podle vlastního stylu – ideální pro ty, kteří hledají projekt s potenciálem a možností individuálního řešení. Druhá parcela přímo navazuje na první a dnes slouží jako rozšíření zahrady a současně také příjezdová cesta k chatě. Na pozemku se dříve nacházela původní chata (již odstraněná), což může do budoucna umožnit opětovné umístění rekreační stavby – dle případného budoucího posouzení příslušných orgánů. Součástí je také garáž ve svahu s přístupem z obecní komunikace. Inženýrské sítě: studna, dotažené odpady, příprava na ČOV, přívod elektřiny Pozemky jsou v osobním vlastnictví a přístup zajištěn z obecní komunikace. Oblast u Dědkova Mlýna je známá svým krásným okolím, lesy, cyklo stezkami. Najdete zde naprosté soukromí, příjemné prostředí a zároveň rychlou dostupnost do Prahy i Kladna. Lokalita je vyhledávána pro rekreaci, chataření, ale také pro možnost celoročního bydlení vzhledem k okolní zástavbě.


