Prodej - dům/vila, 297 m²
Prodej RD 5+kk, 297 m², Unhošť.
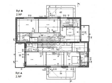
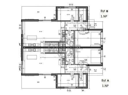
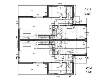
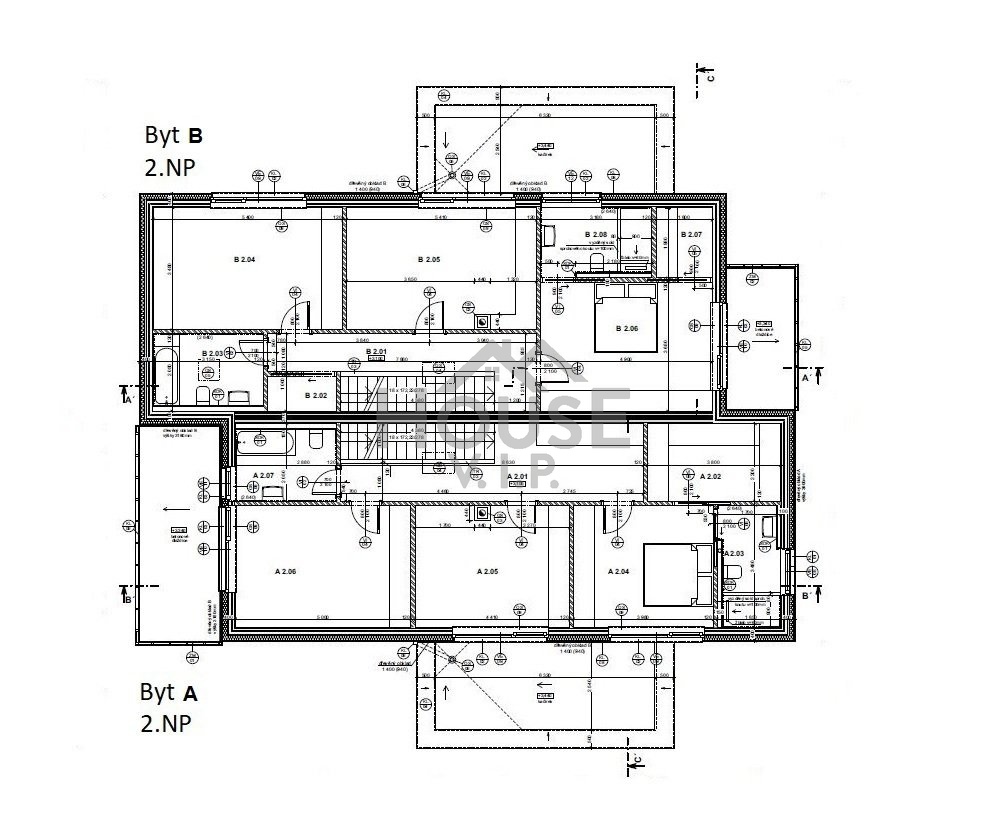
Nabízíme k prodeji dvoupodlažní RD 5+kk, 297 m2, Unhošť. Jedná se o 1/2 dvojdomu. Pozemek-zahrada, který patří k této části dvojdomu má výměru 900 m2. Dům má vlastní garáž, která je průchozí do domu. Před garáží je místo pro parkování automobilu zpevněné zámkovou dlažbou. V přízemí domu je velký otevřený prostor, s velkými okny, umožňujícími vstup do zahrady. Prostor je zamýšlen k využití jako obývací pokoj s kuchyní. V prostoru kuchyně je připravena energetická přípojka pro případný kuchyňský ostrůvek. V místnosti je též připraven vývod pro instalaci krbové vložky. V přízemí je dále samostatný pokoj, koupelna se sprchovým koutem a toaletou, šatna a předsíň. První patro je již členěné. Pokoje poskytují dostatek soukromí a mohou být využity jako ložnice, studovna, dětský pokoj dle libosti. Na patře je rovněž koupelna, WC a v jednom z pokojů jsou připraveny přípojky vody a odpadu, což nabízí variabilní využití tohoto pokoje. V prvním patře jsou rovněž terasy. Dům je zděný ze sendvičového zdiva výrobce BSG, typ LIVETHERM Izolace obálky je integrovaná v sendvičovém zdivu LIVETHERM Vytápění je podlahové - elektrické topné rohože (v garáži je stropní elektrická topná rohož), druhým zdrojem vytápění je krbová vložka. Krbová vložka má připraveno trubní vedení pro přisávání vzduchu a zároveň kouřovod. Elektřina je řešena elektroměrem pro každou část domu zvlášť. Aktuálně je osazen staveništní odběr. Klient si zažádá o osazení svého odběrného místa dle jeho požadavků na jištění a potřebu parametrů připojení. Střecha je plochá, krytina je hydroizolační fólie z PVC. Izolace je EPS100 tl. 220 mm + spádový klín tl. 20-200 mm. Fotovoltaika je možná dodatečně doplnit do RD. Plochá střecha a její konstrukce je připravena pro doplnění návrhu umístění fotovoltaických panelů. Zdroj vody je obecní vodovod. Dům má jednu přípojku a ve vodoměrné šachtě dochází k rozdělení na obě části RD a měření skutečné spotřeby vody podružnými vodoměry. Dům je napojen na obecní kanalizaci. Okna jsou dřevěná, bez bezpečnostních prvků, bez fólií, 3-skla. Dvojdům se nachází v malebné krajině Křivoklátských lesů u města Unhoště.


