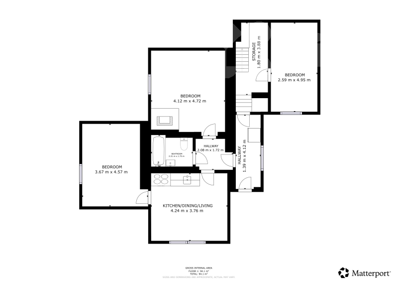
Prodej - chata/rekreační objekt, 94 m²
Exkluzivní prodej rekreační dům 4+kk, pozemek 419 m2, Újezd u Svatého Kříže
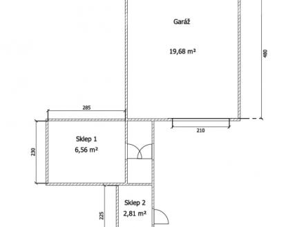
V exkluzivním zastoupení si Vám dovolujeme představit rekreační dům k celoročnímu bydlení, po částečné rekonstrukci, který je umístěn na vlastním poze mku o výměře 419 m2, je podsklepen a nachází se v klidné části obce Újezd u Svatého Kříže. Do domu je přivedena elektřina, voda a veřejná kanalizace. Vytápění domu je řešeno krbovými kamny na tuhá paliva a elektrickými přímotopy, zdrojem teplé vody je elektrický bojler. Na pozemku se nachází dílna a garáž pro jedno auto. Dům je posazen do pěkné zahrady, která je předurčena k vybudování bazénu, skleníku či pergoly pro posezení s přáteli nebo jen k velkým záhonům na pěstování zeleniny a výsadbě ovocných stromů. Újezd u Svatého Kříže je obec v okrese Rokycany v Plzeňském kraji, nacházející se necelé 3 km od města Radnice a cca 13 km od města Rokycany, kde najdete veškerou občanskou vybavenost. V obci se nachází Obecní úřad, pošta, prodejna potravin COOP, restaurace, sportoviště, koupaliště a dopravu zajišťuje autobusové spojení. Pro zájemce máme možnosti financování, a to i pro ty, kterým je zamítnuta klasická hypotéka. Pokud Vás tato nabídka zaujala, neváhejte a zavolejte si o prohlídku ještě dnes, ráda Vás touto nemovitostí provedu! Rozměry půdorysů jsou pouze orientační.


