Prodej - dům/vila, 94 m²
Prodej rodinného domu v Uhlířských Janovicích
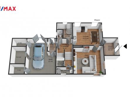
Nabízíme k prodeji rodinný dům s užitnou plochou přibližně 94 m², který se nachází v klidné části Uhlířských Janovic. Dům stojí na pozemku o velikosti 658 m² a představuje ideální volbu pro ty, kteří hledají pohodlné rodinné bydlení. Dispozice a stav domu: V přízemí se nachází vstupní chodba, kuchyně, pokoj, koupelna, WC a technická místnost. V patře jsou dva pokoje, šatna, vstup na půdu a balkon. Dům procházel postupnou rekonstrukcí: kolem roku 2010 – rekonstrukce koupelny kolem roku 2021 – nová kuchyně elektroinstalace částečně v mědi (zásuvky v celém domě) vytápění ústřední, zdrojem tepla je tepelné čerpadlo rozvody topení jsou starší, aktuálně funkční střešní krytina pálená taška komín s platnou revizí Schodiště i interiérové dveře jsou původní dřevěné a zachovávají autentický charakter domu. Součástí je také přístavba s garáží a skladovacími prostory. Lokalita: Uhlířské Janovice nabízejí klidné a příjemné bydlení s dobrou občanskou vybaveností — obchody, škola, školka, pošta i restaurace. Výborná dopravní dostupnost: Kutná Hora – cca 20 minut Kolín – cca 25 minut Díky kombinaci příjemné lokality a dobré dostupnosti je dům vhodný jak pro trvalé rodinné bydlení, tak i pro rekreační účely. Pro více informací nebo sjednání prohlídky kontaktujte makléřku nabídky: Marta Sýkorová – tel. 720 704 593

