Prodej - dům/vila, 140 m²
Rodinný dům, Jarošov, Uherské Hradiště
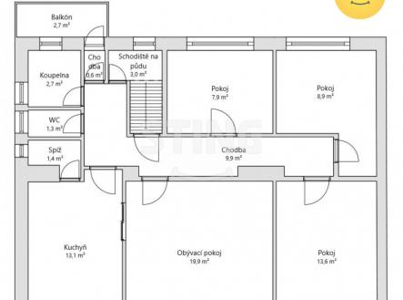
S výhradním souhlasem nabízíme vícegenerační rodinný dům v centrální části Jarošova, jenž je součástí katastru Uherského Hradiště. Dům je rozsáhlý, v suterénu jsou hospodářské sklepní místnosti. Součástí vstupní části domu je průjezd, kde lze zaparkovat. V I. zvýšeném NP jsou 4 pokoje, kuchyně s jídelnou, koupelna, WC (zvlášť), potravinová komora a chodba. Je zde také vstup na první balkon,. Druhé patro nabízí obdobnou dispozici, rovněž se vstupem na balkon a také přístup na velkou pochůzí půdu. Za domem je zahrada, kde může budoucí vlastník odpočívat pod pergolou s příjemným posezením a využít udírnu. Dále je zde také zahradní domek a hospodářské stavení, které je podsklepené. Dům tak nabízí skvělé rodinné zázemí v blízkosti města Uherského Hradiště.


