Pronájem bytu, 3+1, 81 m²
Byt 3+1, Nad Špitálkami, Uherské Hradiště, Mařatice
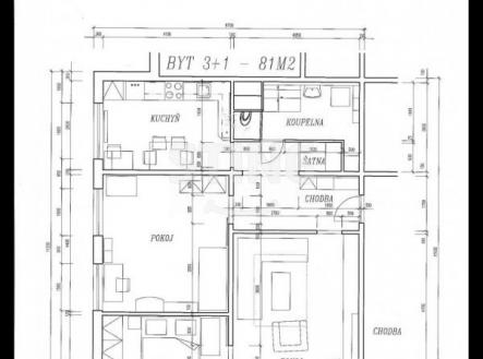
Se souhlasem majitele nabízíme pronájem velmi pěkného a prostorného bytu 3+1. Bytová jednotka je v domě, který se nachází na neprůjezdné a klidné ulici, pohyb aut je zde tak minimalizován. Bytový dům je po revitalizaci, je obklopen zelení a v okolí je výborná občanská vybavenost. Byt má k dispozici 3 prostorné pokoje, velkou kuchyni s jídelní částí, koupelnu, šatnu a samostatné WC. Součástí jednoho z pokojů je balkon se zasklením. K dispozici bude samozřejmě kuchyňská linka (bez lednice), šatní skříň na chodbě a v jedné místnosti vestavná skříň. K užívání bude také sklepní kóje a společné prostory.


