Prodej - dům/vila, 85 m²
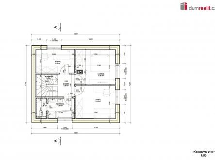
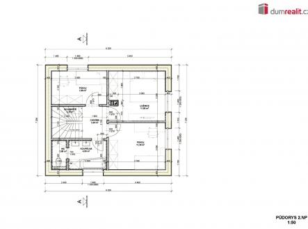
RD 5+kk, Úherce_Nýřany, 118m2
Naše společnost Vám zprostředkuje prodej RD 5+kk v obci Úherce u Nýřan. Dům je zateplen, má obývací pokoj s kuchyní a výstupem na budoucí terasu, dvě ložnice, dvě pracovny (7,5 m² a 7,3m²) a je před kolaudací. Dálkový vodovod, napojení na kanalizaci, podlahové topení, bojler - nízké provozní náklady. Ke kolaudaci - napojení dešťové vody z okapu + hromosvod. Není dodělaná druhá koupelna v patře. Dům je pojištěn a lze nan něj čerpat hypotéku. Výborná dostupnost na dálnici D5 cca 1,5 km do SRN, Plzně nebo Prahy. Veškeré informace a prohlídky u RK. Ev. číslo: 653150.


