Prodej - dům/vila, 63,7 m²
Prodej rodinného domu 3+1 - 64 m2, Týnec nad Labem
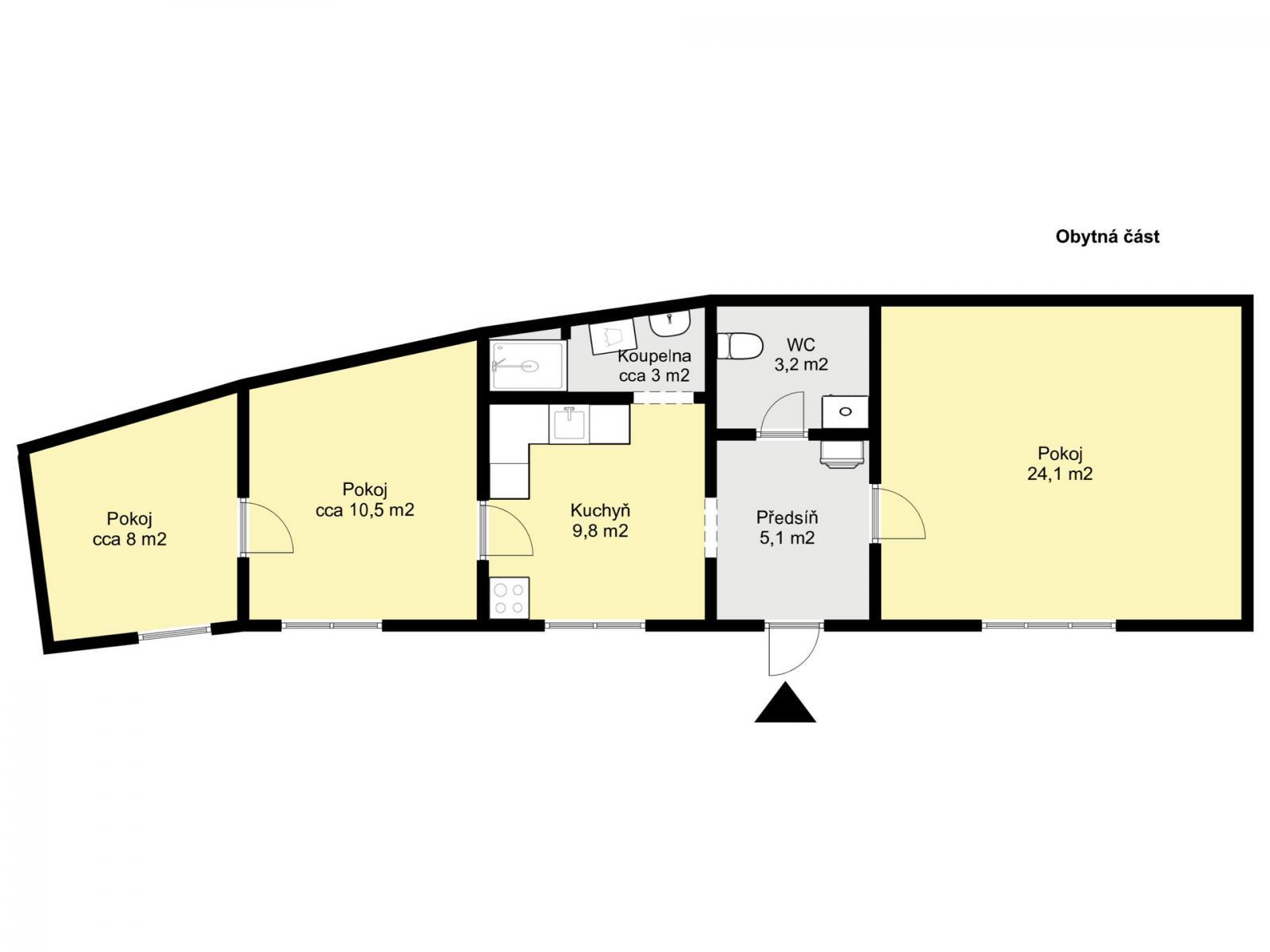
Dobrý den. Nabízím Vám ke koupi rodinný dům o dispozici 3+1 na adrese V Malém Kopci 112, Týnec nad Labem, s celkovou výměrou pozemku 275 m2. Dům je určen k rekonstrukci, což představuje skvělou příležitost vytvořit si bydlení přesně podle vlastních představ. Konstrukce je řešena jako smíšené zdivo. Nemovitost je napojena na obecní vodovod, elektřinu a kanalizaci. Vytápění je zajištěno ústředním topením na tuhá paliva prostřednictvím krbových kamen, s rozvodem tepla pomocí radiátorů. Ohřev vody obstarává elektrický bojler. Dispozice domu se skládá ze vstupní chodby, tří pokojů, kuchyně, koupelny a samostatné prostorné toalety. Obytná část má přibližně 64 m2. Součástí domu je také dílna a technické zázemí, které se nachází pod obytnou částí, součástí tohoto zázemí je i vlastní toaleta. Tato část má rozlohu 35 m2. Před hlavním vstupem do domu se nachází terasa k příjemnému posezení. Týnec nad Labem disponuje veškerou občanskou vybaveností a nabízí příjemné a klidné prostředí pro rodinné bydlení s dobrou dopravní dostupností do okolních měst. V Kolíně jste do 15 minut autem. Vlakové nádraží je 5 minut chůze od domu. Nemovitost lze financovat hypotečním úvěrem, se kterým Vám rádi pomůžeme. Budu se těšit na případnou prohlídku. Uvedené m2 jsou pouze orientační.


