Prodej - dům/vila, 136 m²
Prodej rodinného domu, 136 m² - Tursko
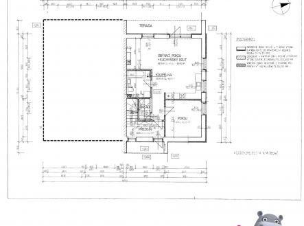
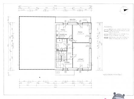
Představuji vám jedinečnou příležitost stát se majiteli poloviny tohoto krásného dvojdomku v klidné a perspektivní lokalitě obce Tursko, která se nachází v okrese Praha-západ. Tento nově postavený dům je ideální volbou pro ty, kteří hledají spojení moderního života s klidem přírody. Připraveno k okamžitému nastěhování – budete první, kdo zde bude bydlet! Dispozice pravé poloviny domu je 5+kk, takže ideální pro vaše rodinné pohodlí. Užitná plocha domu je o velikosti 136 m² + balkon 10,35 m² + terasa 22,75 m². Dům je v osobním vlastnictví. Tento dvojdomek je precizně navržen a postaven tak, aby splňoval všechny vaše potřeby moderního bydlení. V přízemí najdete prostorný a světlý obývací pokoj propojený s kuchyní, kde můžete trávit nezapomenutelné chvíle s rodinou. Z obývacího pokoje se dostanete na velkorysou terasu (22,75 m²), kde si můžete užívat letní večery. Dále zde najdete jeden pokoj, který je možno využít jako ložnici, dětský pokoj nebo kancelář. V podkroví se nachází ložnice a další pokoje, ideální pro vytvoření dětských pokojů a ložnice. K dispozici je také stylový balkon, který poskytuje nádherný výhled do okolní zeleně. Samostatný vstup zajišťuje maximální soukromí. Každý dům má svou vlastní zahradu, takže můžete rozvíjet svůj zahradnický talent nebo si jednoduše užít slunce. Dům má společné parkovací stání pro pohodlné parkování. Kompletní inženýrské sítě: voda, kanalizace, plyn (na hranici pozemku) a elektřina vám zajistí pohodlný život bez starostí. Tursko je malebná obec, která nabízí klidné prostředí s výhodnou polohou pro dojíždění do Prahy. Neváhejte a kontaktujte nás pro další informace nebo sjednání prohlídky. Tato nemovitost čeká právě na vás, abyste ji přeměnili v útulný domov. Výborné spojení do Prahy. Majitel si vyhrazuje právo prodat nemovitost nejvýhodnější nabídce. Dům lze financovat hypotečním úvěrem, který Vám rádi zařídíme. V případě, že hledáte něco trošku jiného, určitě mě sledujte na Facebooku – Marcela Slavíková – realitní služby „bez-starostí“. Pravidelně tam totiž zveřejňuji přednostně nové zakázky. ID: 58326


