Prodej - dům/vila, 205 m²
Prostorný rodinný dům s výjimečným soukromím a krásným výhledem – Tuchoměřice
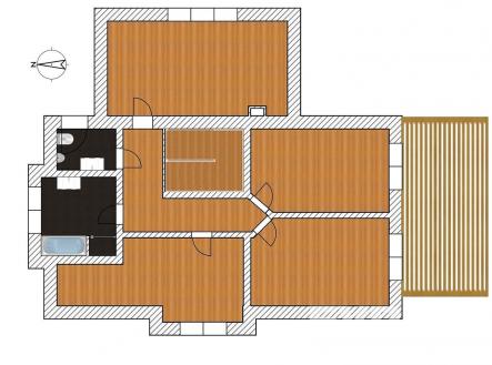
Nabízíme k prodeji prostorný rodinný dům 6+1 o užitné ploše 205 m², situovaný v klidné a žádané lokalitě Tuchoměřice, v těsné blízkosti Prahy a letiště. Dům je postaven z kvalitních cihelných bloků Porotherm, je částečně podsklepený a vybaven eurookny s hliníkovým opláštěním. V přízemí se nachází vzdušný obytný prostor propojený s kuchyní a jídelnou, s přímým vstupem na zahradu s terasou. Ta je vybavena bioklimatickou pergolou, vířivkou, grilovacím koutem a venkovním betonovým stolem. Dále je zde samostatný pokoj, koupelna s WC a prostorné zádveří. Vstup do domu vede přes jižní terasu s krásným výhledem do okolí. V patře najdete čtyři ložnice, koupelnu a samostatné WC. Nad druhým patrem je částečně pochůzná půda, ideální pro ukládání sezónních věcí. V suterénu domu je garáž pro jeden vůz a další místnost poskytující dostatek úložného prostoru. Vytápění zajišťuje kombinace elektrického podlahového topení v přízemí a radiátorů v ostatních místnostech, doplněné moderním tepelným čerpadlem Viessmann Vitocal 200. Dům je napojen na obecní vodovod i kanalizaci. Dešťová voda ze střechy je svedena do dvou retenčních jímek s možností využití pro závlahu zahrady. Pozemek se vzrostlými stromy, keři a okrasnou zahradou zaručuje naprosté soukromí a ničím nerušený výhled do údolí. Parkování je zajištěno v garáži a na čtyřech venkovních stáních na vlastním pozemku u domu. Tuchoměřice nabízejí ideální kombinaci klidného bydlení v přírodě a rychlé dostupnosti do centra Prahy. V okolí najdete lesy, cyklotrasy i kompletní občanskou vybavenost.
EVROPA realitní kancelář PRAHA 1


