Pronájem - skladovací prostor, 1 416 m²
Pronájem skladu, výrobních prostor 1.416 m², Tuchoměřice, Praha - Západ
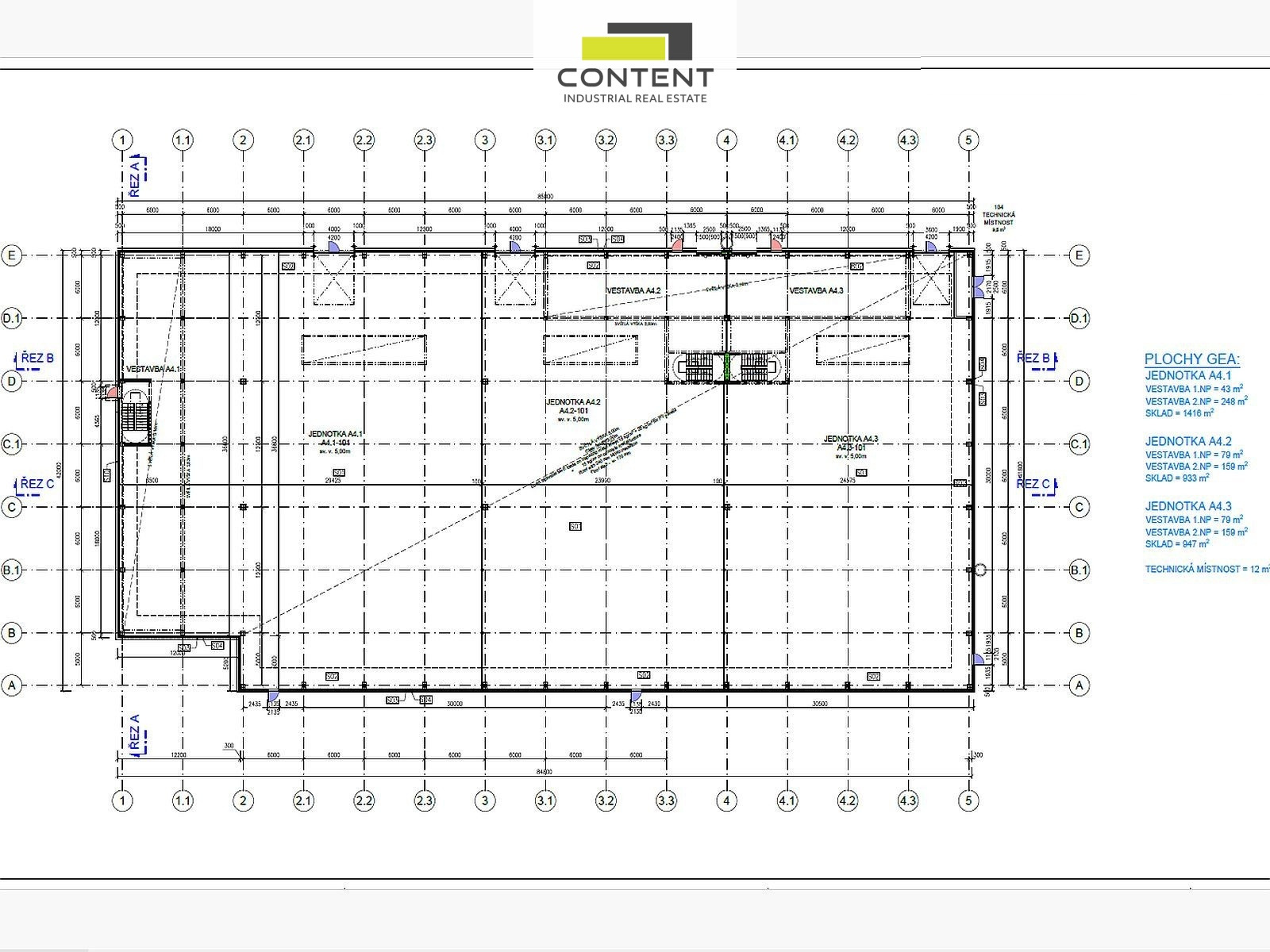
Pronájem skladu, výrobních prostor 1416 m² Tuchoměřice. V zastoupení majitele a bez provize nabízíme industriální prostory vhodné pro sklad nebo výrobu, umístěné na strategickém místě nedaleko Letiště Václava Havla, s výbornou dostupností na dálnici D7 a do Prahy. - výrobní prostory, logistické centrum, sídla firem, výzkumné prostory, školící centra a kanceláře - hala (A4) 3296 m² ve výstavbě, k dispozici 02/2026 - světlá výška od 5 m - nosnost podlahy minimálně 5 t/m² - 3 vjezdy v úrovni vozovky - LED osvětlení, sprinklery - moderní, úsporná budova s certifikátem udržitelnosti BREEAM - kancelářské a sociální zázemí dle potřeby - objekt je možné rozdělit na samostatné jednotky: • 947 m² skladové plochy + kanceláře • 933 m² skladové plochy + kanceláře • 1 416 m² skladové plochy + kanceláře - oplocený areál s ostrahou Cena bude stanovena dle dalších požadavků individuálně. Fotografie jsou pouze ilustrativní. Pro více informací nás kontaktujte.


