Prodej - dům/vila, 257 m²
Pozemek s projektem rodinného domu - Trutnov, Na Dvoračkách
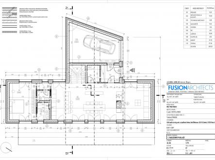
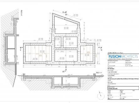
V Trutnově, v klidné a vyhledávané části Na Dvoračkách, nabízíme ke koupi stavební pozemek o výměře 953 m² se schváleným projektem moderního rodinného domu a platným stavebním povolením (včetně samostatného povolení na vrtanou studnu). Projekt vznikal s mimořádnou péčí – architekt ho tvořil pro sebe a svou rodinu. Při práci pozoroval pozemek v různých obdobích roku, aby dům co nejlépe využil světlo, výhledy i přirozené soukromí. Výsledkem je harmonický a nadčasový návrh, který citlivě zapadá do okolní krajiny a nabízí pocit klidu, rovnováhy a propojení s přírodou. Dům na vizualizacích představuje schválený projekt, který lze okamžitě začít realizovat – nabídka se však týká samotného pozemku. Nový majitel může využít stávající dokumentaci nebo návrh upravit dle vlastních představ. Pozemek má rozlohu 953m2 a nachází se v klidné zástavbě novějších rodinných domů na okraji lesa. Místo působí velmi poklidně a soukromě s příjemným propojením s okolní přírodou. Terén je mírně svažitý, což umožňuje zajímavé architektonické řešení domu. Pozemek je napojený na elektřinu, městský vodovod je veden hned u hranice pozemku. Součástí nabídky je platné stavební povolení na dům i studnu, takže je možné začít stavět prakticky ihned, bez zdržení a vyřizování formalit. Projekt není závazný – nový majitel může realizovat i vlastní architektonické řešení. Velkou předností je také minimální dopravní provoz – příjezdová silnice není průjezdná, vede pouze k několika domům a dále do lesa. Lokalita nabízí skvělé zázemí pro trvalé bydlení i rekreaci – v blízkosti jsou cyklostezky, turistické trasy a zimní střediska Krkonoš. S dokončením dálnice D11 bude navíc spojení s Prahou ještě rychlejší a pohodlnější. Pokud hledáte útulné místo obklopené zelení, které poskytne klid, soukromí a příjemnou atmosféru, ale zároveň chcete mít město na dosah, Na Dvoračkách v Trutnově je přesně to pravé místo.


