Prodej - dům/vila, 173 m²
Prodej novostavby RD / 5+kk+garáž Tršice
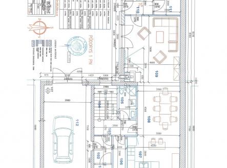
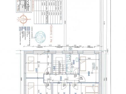
Ve výhradním zastoupení majitele si Vám dovolujeme nabídnout k prodeji novostavbu krajního řadového domu v obci Tršice, která je vzdálená 16 km od Olomouce. Dům je nyní ve výstavbě a termín dokončení je naplánovaný do konce roku 2025. Jedná se o dvoupodlažní zděný dům o dispozici 5+kk s garáží, užitná plocha domu činí krásných 173 m2 + garáž 28 m2. K domu náleží pozemek o výměře 214 m2. V přízemí se nachází vstupní chodba, ze které se vchází do koupelny s WC, kuchyně s jídelnou, obývacího pokoje, komory a garáže, v patře jsou pak čtyři samostatné ložnice, velká šatna a druhá koupelna s WC. Z obývacího pokoje se francouzským oknem dostanete na oplocený dvůr, který nabízí maximální soukromí na odpočinek. Dům bude napojen na veškeré inženýrské sítě – vodovod, kanalizace, elektřina. Vytápění bude zajišťovat tepelné čerpadlo voda – vzduch, v přízemí bude podlahové vytápění, v patře pak radiátory. Dům bude dokončen ve vysokém standardu, vyjma kuchyňské linky. Dům má sedlovou střechu, krytina poplastovaný plech, okna jsou plastová s trojskly. V interiéru budou laminátové podlahy v kombinaci s dlažbou, obložkové dýhované dveře, schodiště do patra bude monolitické s dřevěným obložením z dubového masivu. Obec Tršice nabízí svým obyvatelům veškerou občanskou vybavenost, nachází se zde mateřská i základní škola, zdravotní středisko, sportovní zařízení s tenisovými kurty, obchod aj. Velkou výhodou je velmi dobrá dopravní dostupnost do Olomouce i Přerova. V případě zájmu o bližší informace či prohlídku nás neváhejte kontaktovat.


