Prodej - dům/vila, 154 m²
Prodej RD 5+kk 154m2 Troubsko, pozemek 950m2
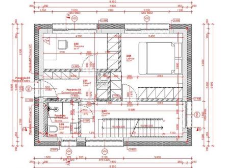
Výstavba dvou rodinných domů na pozemku 2267m2, Troubsko, v lokalitě nad Rybníkem, na vrstevnici nad ulicí Pod vinohrady. Díky umístění ve svahu nabízí pozemek krásný výhled. Velká plocha pozemku 950m2, se šířkou 19,4m a délkou 49m2 zajišťují soukromí a klid pro vaše bydlení. Předmětem této nabídky je prodej RD 5+kk s podlahovou plochou 154,2m2, se dvěma parkovacími místy před domem na pozemku, vyznačeném na situačním plánu červeně. Na zastavěné ploše 60m2 vznikne stavba o čtyřech podlažích. V podzemním podlaží - technická místnost 3,3m2 - elektrokotel + zásobník TUV, prádelna 10,7m2, šatna 8,1m2, sklad 7,2m2, koupelna 1,8m2, chodba se schodištěm 6,4m2. V přízemí - WC 1,2m, chodba 1,6m2 se schodištěm, obývací pokoj 35,8m2 s kuchyňským koutem a výstupem na terasu a zahradu 2.NP - hlavní vstup - zádveří 5,8m2, místnost 8,4m2,(pracovna, může být i velká šatna s propojením do ložnice, ložnice 13,5m2, koupelna 3,4m2, chodba 8m2 se schodištěm. 3.NP - pokoje 15,2 a 12,7m2, koupelna 5,6m2, chodba 5,7m2 se schodištěm. Zahájení stavby 3/2026 dokončení domu do konce tohoto roku. Vzhledem k počáteční fázi stavby, jsou nyní možné klientské změny, případné úpravy dispozic, výběr materiálů / povrchů... V případě více zájemců, si prodávající vyhrazuje možnost, prodat nejvyšší nabídce. Pro další informace volejte makléře na tel. 605 931 999 nebo napište vaše dotazy na e-mail holub@bravoreality.cz


