Prodej - dům/vila, 297 m²
Prodej RD 4+kk, 1+kk, 1+kk, Troubsko, Vyšehrad 32
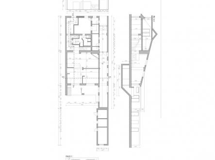
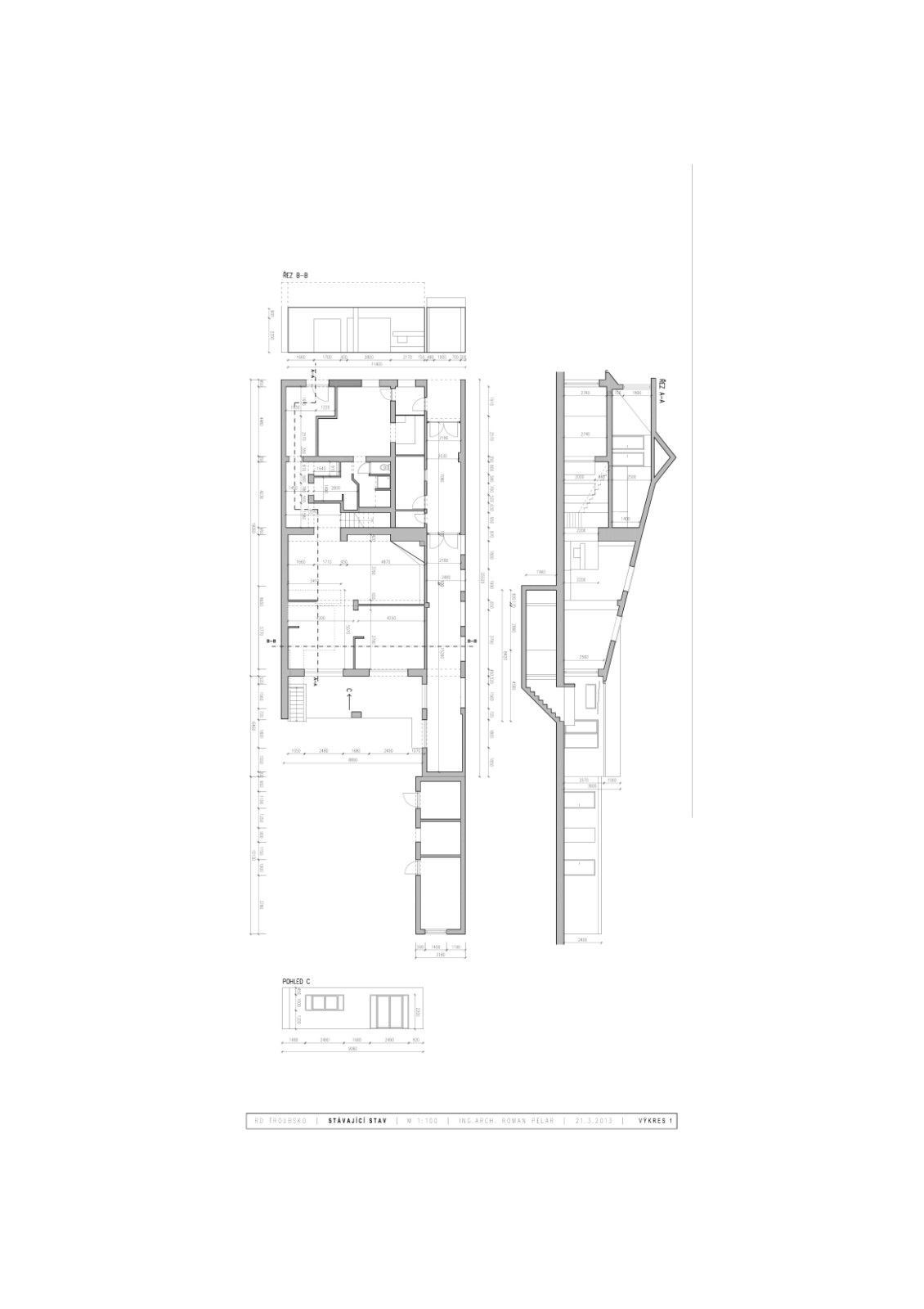
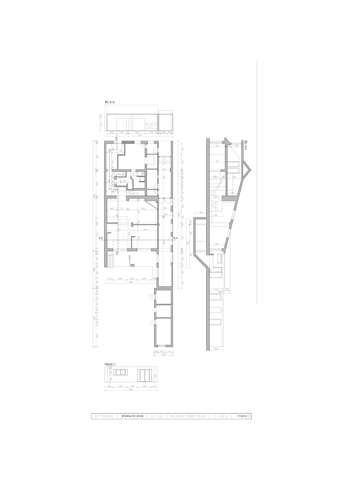
Nabízíme na prodej vícegenerační rodinný dům 4+kk, 1+kk, 1+kk v žádané lokalitě Troubsko, na adrese Vyšehrad 213/32. Tato oblast je známá svým klidem a přírodními krásami, což z ní činí ideální místo pro rodinné bydlení. Dům se pyšní užitnou plochou 297 m², zahrnuje dvě nadzemní podlaží a jedno podzemní. Celková plocha pozemku činí 1232 m², z toho zastavěná plocha je 205 m² a zahrada zabírá impozantních 913 m². Součástí pozemku je také terasa o rozloze 21 m², která poskytuje ideální prostor pro odpočinek nebo společenské aktivity. Dům disponuje i sklepem o velikosti 8 m². Interiér domu je rozdělen na tři bytové jednotky, což nabízí flexibilní využití pro velké rodiny nebo možnost pronajímání. Vytápění zajišťují topné panely doplněné o krb. K dispozici je také ADSL připojení k internetu. Bytový dům prošel renovací v roce 2011, čímž je zajištěn vysoký standard bydlení. Nemovitost je připojena na el. energii, veřejný vodovod a kanalizaci. Pro nové majitele je připraveno i čtyři parkovací místa, což ocení především rodiny s více vozidly. Díky strategické poloze domu jsou veškeré služby – obchody, školy, lékařská zařízení či volnočasové aktivity – dostupné do 15 minut jízdy. Cena nemovitosti je stanovena na 14 900 000 CZK včetně právního servisu a provize RK. Nabídka je vhodná pro kupující, který hledá prostorný a dům v klidné oblasti s možností okamžitého nastěhování, popřípadě lehkých úprav interiéru.


