Prodej - obchodní prostor, 711 m²
Prodej projektu administrativní budovy (711 m² ) včetně stavebního pozemku 1011 m², Troubsko
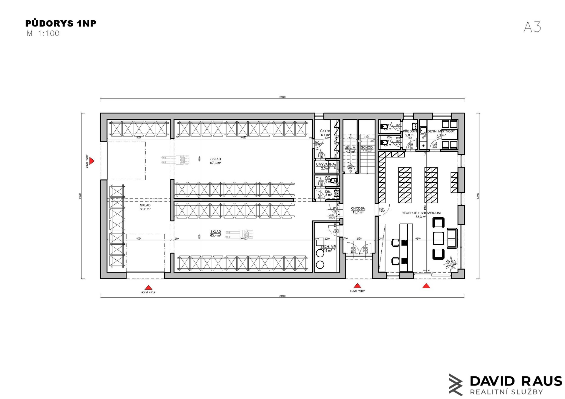
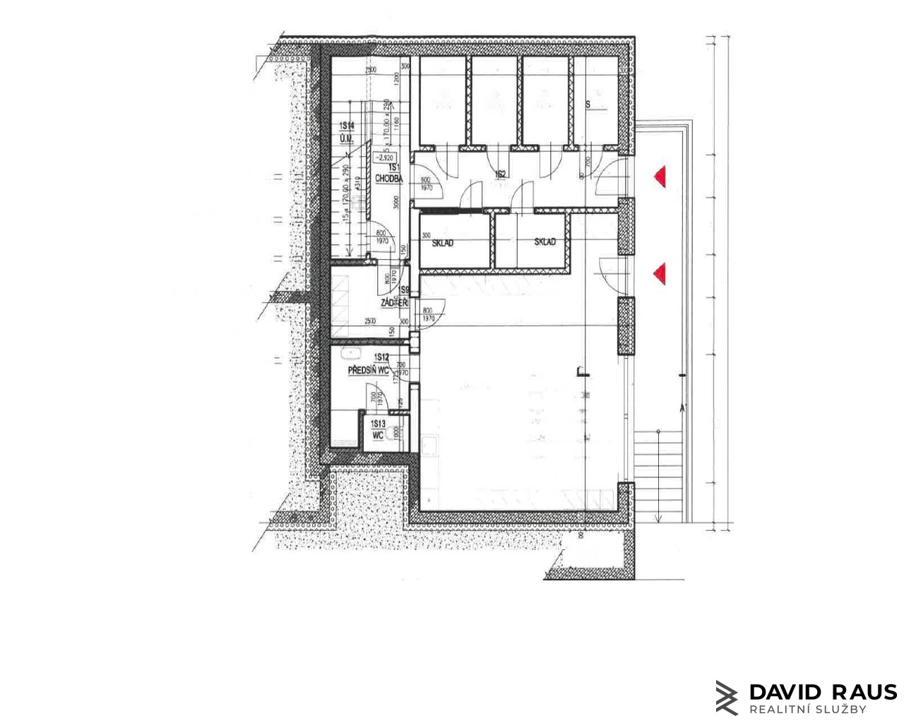
Nabízím k prodeji projekt výstavby administrativní budovy o celkové užitné ploše 711 m² na stavebním pozemku určeném pro komerční zástavbu o výměře 1011 m² v k.ú. Troubsko. Součástí nabídkové ceny je stavební parcela včetně projektové dokumentace se stavebním povolením. Cena stavby není zahrnuta v nabídce. Pozemky jsou připraveny k okamžité zástavbě s vyřízeným stavebním povolením pro výstavbu dvoupatrové administrativní budovy se skladovací plochou, kancelářemi a showroomem, o celkové zastavěné ploše 371 m². Součástí navrhované budovy je také jedno podzemní podlaží (částečné). Popis dispozičního řešení: Velikost objektu je 13 x 28,5 m s plochou pultovou střechou. Výška stavby je 11,87 m měřená od základu po atiku ploché pultové střechy. 1.PP obsahuje - chodbu, zádveří, kancelář, předsíň se samostatným WC a sklady 1.NP obsahuje - chodbu se společným schodištěm, showroom s recepcí, denní místnost, předsíň se dvěma WC, technickou místnost, velkoprostorový sklad, šatnu se sprchou a WC 2.NP obsahuje - chodbu, kanceláře s hygienickým zázemím, součástí byt pro majitele - správce objektu Celkovou výměru tvoří pozemky obdélníkového tvaru s parcelním číslem 46/5 - 85 m2,46/1 - 850m2 a č.39/43 -76m2. Pozemky jsou situovány na strategickém místě nedaleko dálnice D1 a hlavního tahu do centra Brna. Podle platného Územního plánu obce Troubsko jsou prodávané pozemky určené jako plochy výroby a skladování - drobná řemeslná výroba. Hlavní využití : Pozemky staveb a zařízení malovýroby, řemeslné či přidružené výroby a skladovacích areálů. Přípustné – sběrná místa komunálního odpadu, sběrny surovin – pozemky související dopravní a technické infrastruktury – pozemky sídelní zeleně, drobná architektura – stavby veřejné dopravní infrastruktury a technické infrastruktury. Základní informace: Lokalita : Troubsko, ul. Zahradní Typ : Administrativní budova Předmět prodeje: pozemky s projektem a stavebním povolením v právní moci Užitná plocha: 711 m² Dispozice : 3 podlažní budova Parkování: 15 stání Zastavěná plocha: 371 m² Veškeré podklady včetně projektové dokumentace a vydaného stavebního povolení financování.


