Prodej - dům/vila, 260 m²
Dvougenerační RD, 260 m2, Trhové Sviny
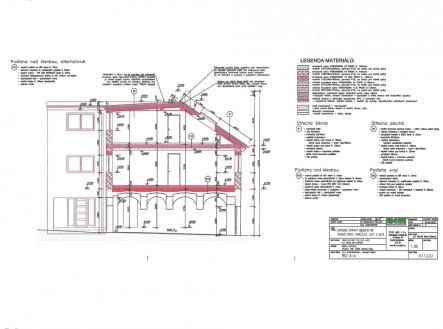
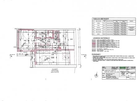
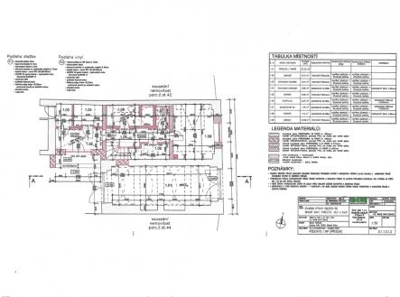
Nabízím k prodeji dvougenerační rodinný dům nacházející se v centru města Trhové Sviny. Dům stojí na stavebním pozemku o celkové výměře 248 m2. Do této výměry se zahrnuje průjezd, dvorek a stavba bez čp/če napojená na dům. K domu dále patří oplocená zahrada o výměře 88 m2. Dům je v současné době v rekonstrukci, jsou provedeny bourací práce. Jedná se o modernizaci celého objektu RD. Jsou navrhovány nové svislé nosné konstrukce, dispoziční úpravy, nové stropní konstrukce a krov vč. nového zastřešení. Bude ponechán průjezd / garáž a část obvodové stěny v 1.NP. Rodinný dům není podsklepený, jsou navržena dvě hlavní obytná podlaží a obytné podkroví. Rodinný dům bude tvořit bytová jednotka 6+kk o podlahové ploše: podlahová plocha 1.NP 71,99 m2 podlahová plocha 2.NP 75,64 m2 podlahová plocha 3.NP 71,94 m2 Stávající objekt je napojen na vedení inženýrských sítí vodovodu, kanalizace, teplovodu a vedení NN přes stávající přípojky. Všechny tyto stávající přípojky budou využity i v rámci stavebních úprav objektu. Nepředpokládá se vybudování nových přípojek nebo přeložek inženýrských sítí. Na tento projekt je zpracována projektová dokumentace, je zahájeno řízení o vydání stavebního povolení a v současné době je již vydáno Vyrozumění o zahájení řízení. Odbor památkové péče tento projekt schválil. Vše je součástí prodeje domu. Stavba bez čp/če, která je součástí celého objektu a je přímo napojena na rekonstruovaný dům je v současné době využívána jako byt o dispozici 3+kk. Trhové Sviny jsou město a obec s rozšířenou působností v okrese České Budějovice v Jihočeském kraji. Leží devatenáct kilometrů jihovýchodně od Českých Budějovic na soutoku Farského a Svinenského potoka. Historické jádro města je městskou památkovou zónou. Samozřejmostí je veškerá občanská vybavenost. Jedná se o velmi zajímavou nabídku a určitě doporučuji prohlídku. V případě zájmu zajistím financování na koupi nemovitosti


