Prodej - dům/vila, 149 m²
Moderní dům umístěný na atypickém pozemku, Třebušín
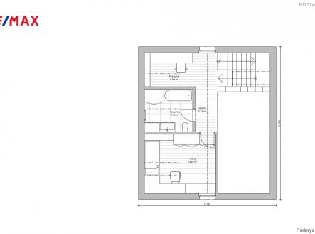
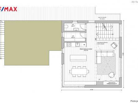
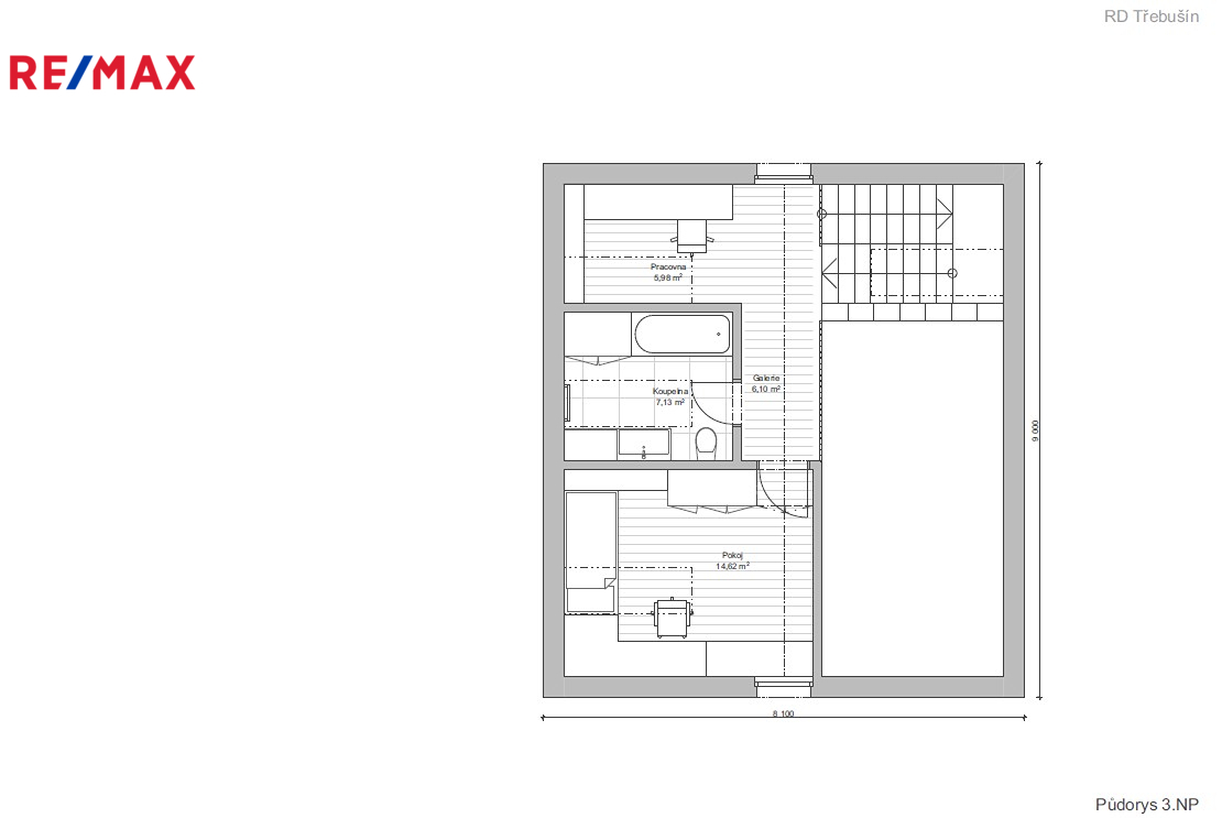
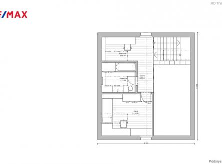
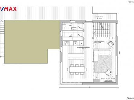
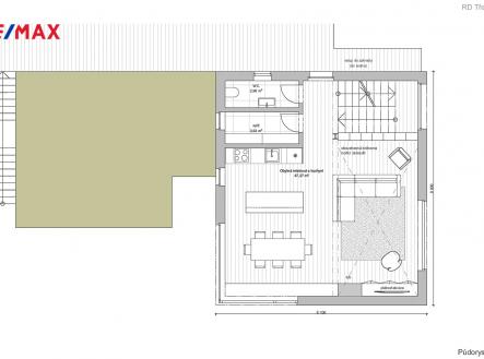
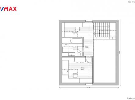
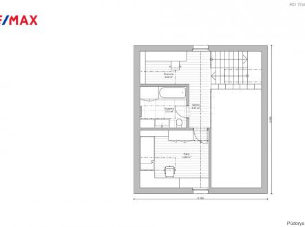
Vymyslet moderní dřevostavbu pro čtyřčlennou rodinu rozloženou do tří podlaží tak, aby stavba ctila svažitost terénu a kamenné terasy? V architektonickém studiu vznikl nádherný projekt domu, který nikde jinde stát nebude. Jedinečné místo, jedinečné možnosti, jedinečné řešení. A pokud vy sami nechcete zapadnout mezi nudnou obdelníkovou šeď rovných pozemků tak možná tahle nabídka je tou pravou. Vy máte nyní tu příležitost koupit tento pozemek o výměře 1 124 m2 v Třebušíně s projektem domu včetně všech potřebných vyjádření k jeho realizaci. A pokračovat v jeho výstavbě. Nebudete tím, kdo až dům uvidí bude tiše závidět, že na něco podobného nepřišel dřív. Stanete se tím, kdo tento dům postavil a žije v něm. Nebo v něm bude trávit víkendy, volna, prázdniny. A časem se do něj nastěhuje na trvalo. To vše můžete mít a máte na dosah ruky. Bude se vám tu dobře odpočívat. Bude se vám tu dobře čerpat nová energie. Jedná se o novostavbu rodinného domu o dvou nadzemních podlažích a s obytným podkrovím o zastavěné ploše 112 m2. S krytým parkovacím stáním pro dva automobily. Navrhované kapacity rodinného domu: • Zastavěná plocha činí 112 m2 + 72 m2 zpevněných ploch. Celkem tedy 194 m2. • Celkový obestavěný prostor je 915 m³. Obestavěný prostor RD je 753 m³ vč. základů, obestavěný prostor krytého parkovacího stání je 162 m3. • Celková užitná plocha rodinného domu je spočtena na 149 m2. Užitná plocha krytého parkovacího stání a venkovního skladu je 43 m². • V objektu se nachází 1 bytová jednotka. • Počet obyvatel v jednotce se odhaduje na 4. Více k vypracovanému projektu domu po dohodě. K dispozici je veškerá přípravná dokumentace a již jsou k dispozici také různá vyjádření dotčených orgánů k umístění stavby. Prodávající si vyhrazuje právo vybrat kupujícího na základě jím zvolených kritérií.


