Prodej bytu, 3+1, 73 m²
Prodej bytu 3+1 73 m²
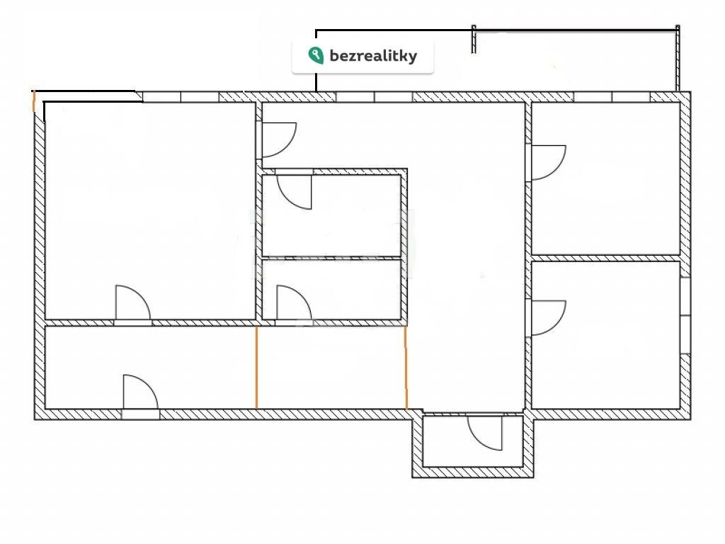
Prodej bytu 3+1 – Třebíč, ul. H. Haška – výhled, dva balkony, sklep, komora Nemovitost má celkovou dispozici o výměře 71 m² a nachází se v 6. podlaží ze sedmi celkem s výtahem, což zajišťuje klidné a mírně vyšší umístění. Byt je nevybavený, což dává budoucímu majiteli možnost zařídit si jej podle vlastních představ. Parkování je zajištěno. V klidné části Třebíče u lesa. Byt má dvě lodžie s krásným výhledem, vyzděné jádro a je připraven k dokončení – kupující si může zvolit vlastní obklady, podlahy i kuchyňskou linku. Součástí bytu je komora přímo v bytě, sklepní kóje a v domě je k dispozici kočárkárna. Ústřední vytápění, nízké provozní náklady, parkování před domem. Lokalita je ideální pro rodiny i investory – klidné prostředí u lesa, výborná dostupnost MHD, obchodů i škol. Vzhledem k plánované výstavbě Dukovany 2 je nemovitost i výbornou investicí. K půdorisu - oranžové je po vyzdění jádra, doplněn přibližně dvojtý balkón. V případě zájmu mě prosím kontaktujte prostřednictvím komunikační platformy. Dům je po celkové revitalizaci. Nízké měsíční náklady. Orientační cena k jednání. Tato nemovitost je určena výhradně přímým zájemcům o koupi. Na inzerát můžete také reagovat přímo na webu Bezrealitky: https://www.bezrealitky.cz/nemovitosti-byty-domy/972196-nabidka-prodej-bytu-jar-haska-trebic


