Prodej - dům/vila, 140 m²
K prodeji rodinný dům v Třebíči, ul. Tkalcovská
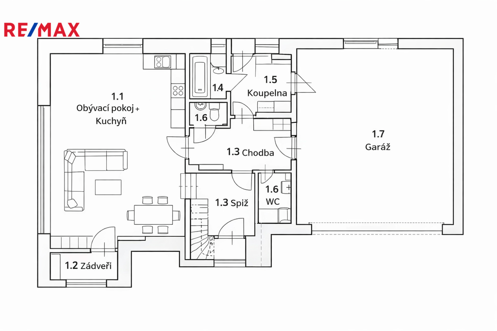
Ve výhradním zastoupení nabízíme k prodeji rodinný cihlový dům v řadové zástavbě, situovaný v klidné části Třebíče na ulici Tkalcovská, v docházkové vzdálenosti do centra města. Nemovitost disponuje zastavěnou plochou 178 m² včetně menšího uzavřeného dvora a nabízí praktickou dispozici 5+kk s prostornou garáží, která poskytuje komfortní parkování i dostatek úložného prostoru. Dům je postaven z cihelného zdiva, stropy jsou trámové, střecha sedlová s pálenou taškou. V rámci úprav byla provedena výměna oken, oprava a nový nátěr vnějších omítek. Rozvody vody a odpadů jsou v plastu, elektroinstalace v mědi. Interiér nabízí dvě koupelny a kuchyňskou linku včetně spotřebičů. Vytápění je řešeno elektricky, přičemž plynová přípojka se nachází u domu. Alternativně je možné využít lokální vytápění tuhými palivy prostřednictvím krbu. Velkou výhodou je lokalita s kompletní občanskou vybaveností v bezprostředním okolí – školy, školky, obchody, zdravotnická zařízení i zastávky MHD. Veškerá projektová dokumentace je k dispozici k nahlédnutí při osobní prohlídce. V případě zájmu Vám rádi zajistíme kompletní realitní a finanční servis včetně výhodného financování této nemovitosti.


