Pronájem bytu, 2+kk, 65 m²
Byt o velikosti 2KK v ulici Janouškova, Třebíč
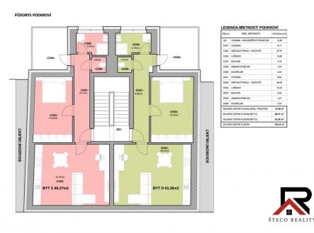
Nabízíme k pronájmu nový byt o velikosti 2 + kk, situovaný v oblíbené části obce Horka-Domky, v ulici Janouškova, okrese Třebíč. Tento cihlový objekt je ve velmi dobrém stavu a nachází se ve druhém nadzemním podlaží budovy s celkovým počtem dvou podlaží. Byt má užitnou plochu 65,67 m², což poskytuje dostatek prostoru pro pohodlné bydlení. Interiér je částečně vybaven, což umožňuje novému nájemci přizpůsobit si prostor dle svých představ a potřeb. Lokalita, ve které se nemovitost nachází, je klidná a zároveň dobře dostupná. V blízkosti bytu jsou veškeré potřebné služby, které zajišťují pohodlné a komfortní bydlení. K bytu náleží zahrada s pergolou, která je k užívání. Tento prostor nabízí možnost relaxace a trávení volného času na čerstvém vzduchu, ideální pro pořádání grilování s přáteli nebo rodinou. Celkově se jedná o ideální volbu pro jednotlivce či páry hledající moderní bydlení v klidné lokalitě s dobrou dostupností do centra Třebíče. V případě zájmu o prohlídku nás neváhejte kontaktovat. Možné jsi i další dispozice bytů.


