Prodej - dům/vila, 294 m²
Moderní rodinný dům 294 m² v obci Tmaň s panoramatickými výhledy na Český kras
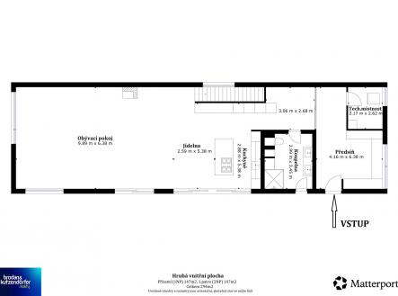
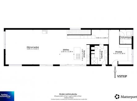
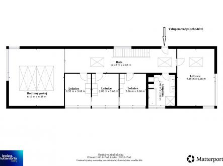
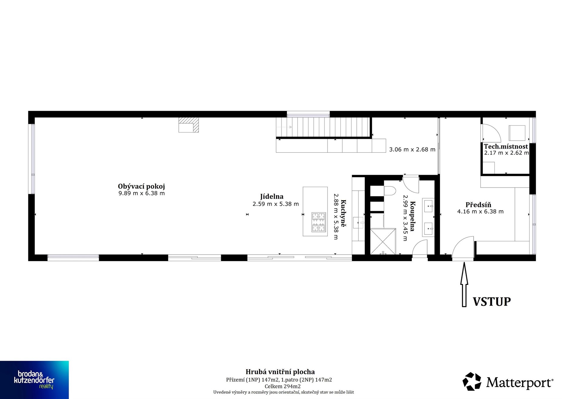
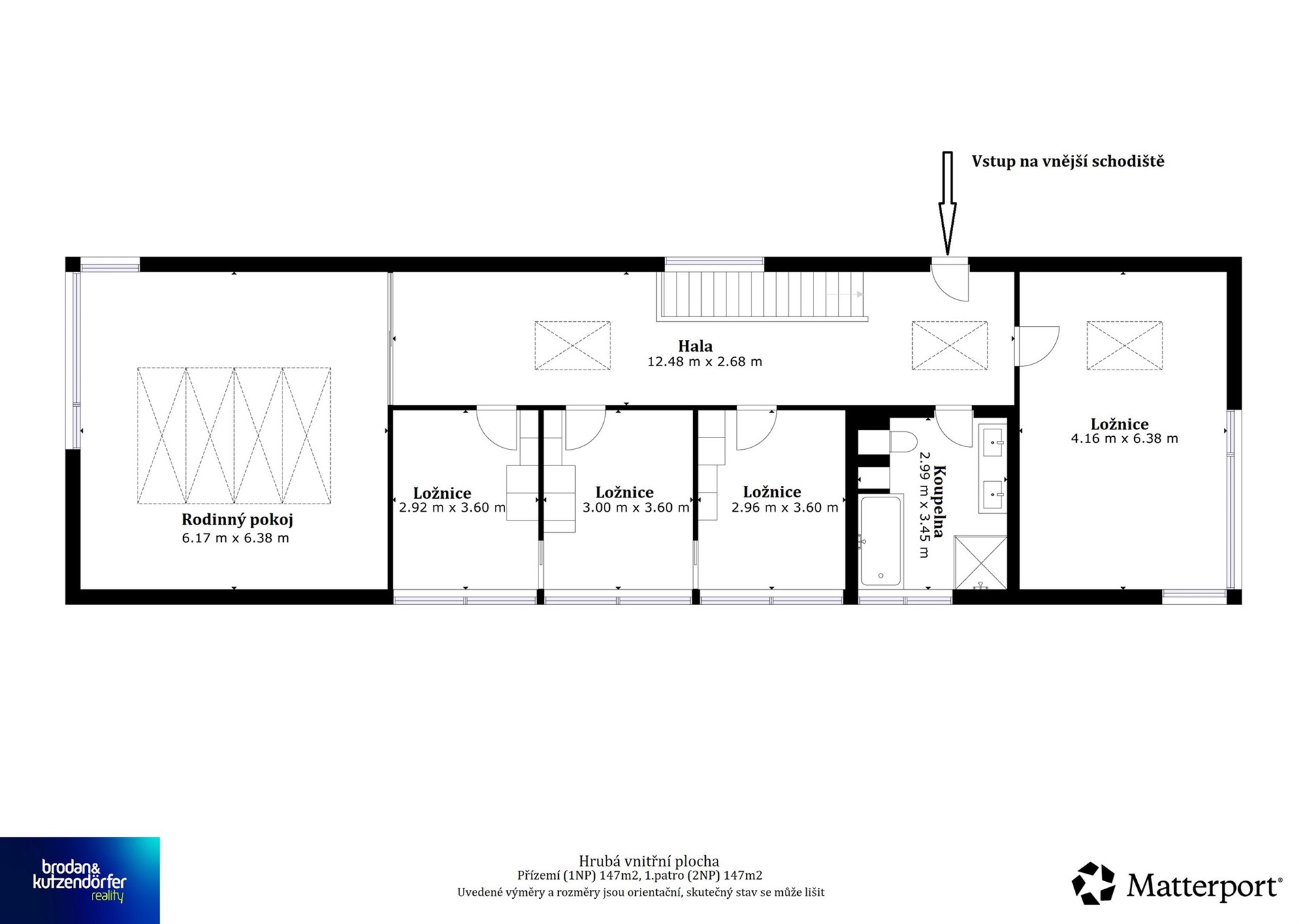
Nabízíme k prodeji výjimečný moderní rodinný dům kolaudovaný v roce 2023, situovaný v obci Tmaň, velice blízko města Králův Dvůr, v klidném prostředí s dostatkem soukromí a dobrou dostupností do Berouna i Prahy. Dům o celkové vnitřní užitné ploše 294 m² je umístěn na pozemcích o celkové výměře 1 634 m², které poskytují nadstandardní prostor pro rodinné bydlení, relaxaci i další rozvoj. Z domu a pozemku se otevírají jedinečné, ničím nerušené panoramatické výhledy na ikonické dominanty Českého krasu – masiv Kotýzu, vrch Zlatý kůň a skalní útvar Aksamitova brána, které dodávají místu výjimečnou atmosféru a prestiž. Nemovitost představuje kombinaci kvalitní architektury, moderních technologií a vysokého uživatelského komfortu. V domě je instalováno teplovodní podlahové vytápění s tepelným čerpadlem Vaillant se systémem země/voda. Ohřev vody je řešen kombinací bojleru a tepelného čerpadla. Dům je vybaven inteligentním systémem chytré domácnosti ABB včetně střešní meteostanice. Komfort v letních měsících může zajišťovat klimatizační systém instalovaný v přízemí i patře domu s centrální jednotkou na střeše objektu; po dokončení interiérových jednotek umožní plnohodnotnou regulaci teploty v jednotlivých obytných místnostech dle preferencí nového majitele. Samozřejmostí je zavedená datová přípojka pro vysokorychlostní internet a TV. Po kolaudaci byly provedeny terénní úpravy pozemku. Dešťové vody jsou svedeny do retenční nádrže, v dolní části pozemku je vybudován závlahový systém travního porostu a k dispozici je vlastní vrt studny se silným, vydatným pramenem. Parkování je aktuálně řešeno na zpevněné štěrkové ploše před zastřešenou terasou domu s kapacitou pro dvě vozidla. Součástí pozemku jsou rozestavěné venkovní stavby určené k dokončení, konkrétně bazén a technický domek, oba ve fázi hrubé stavby. K dispozici je rovněž projekt samostatné garáže jako solitérní stavby v příjezdové části pozemku, se stavbou dosud nebylo započato. Pozemek je zčásti oplocen, zbývající oplocení je v gesci sousedního pozemku. Lokalita nabízí velmi dobrou dopravní dostupnost. Napojení na dálnici D5 (exit Králův Dvůr) je vzdáleno přibližně 5 km, s dojezdovým časem zhruba 10 minut. Do centra Berouna na Husovo náměstí je to 11 km, tedy cca 12 minut jízdy autem. Do Prahy na Zličín lze dojet za 35 minut, vzdálenost činí zhruba 32 km. Součástí prodeje je kuchyňská linka včetně vestavěných spotřebičů, kompletní koupelny a sociální zařízení včetně příslušenství a vestavěný nábytek, zejména šatna ve vstupní hale. Případné ponechání dalšího mobiliáře je možné po individuální dohodě. Nemovitost je vhodná pro klienty, kteří hledají reprezentativní, technologicky vyspělé bydlení s velkorysým pozemkem, vysokou mírou soukromí a možností finální personalizace exteriéru v klidné lokalitě s výjimečnými výhledy a výbornou dostupností do Berouna i Prahy. Pokud máte zájem o prohlídku nebo více informací, neváhejte nás kontaktovat.


