Prodej bytu, 2+kk, 55 m²
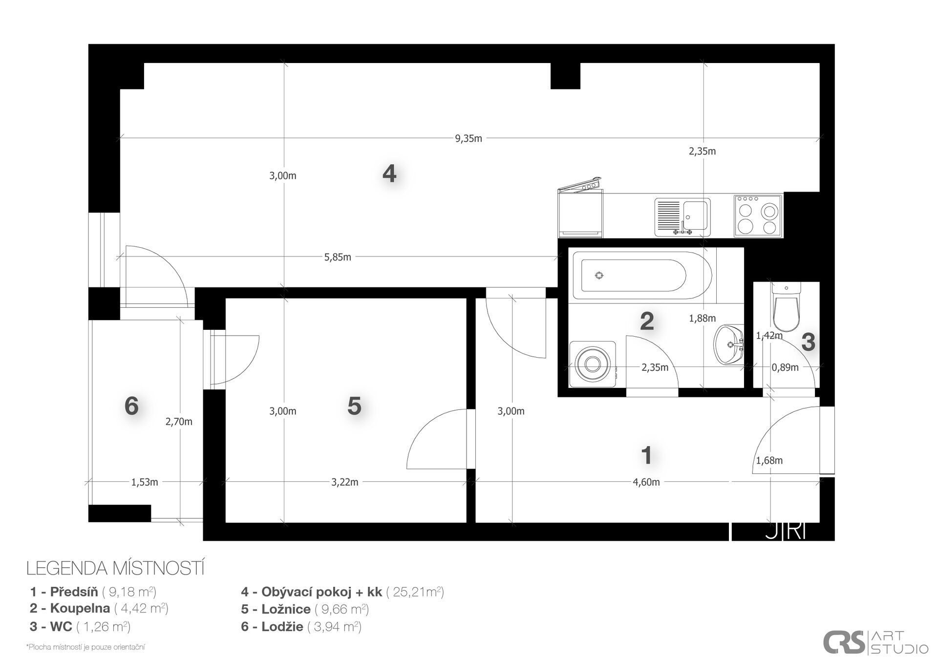
Byt 2+kk ve vlastnictví, Tmaň u Dvora Králové, 50 m2 + balkón 5 m2 + sklep 1 m1
Exkluzivně vám nabízím k prodeji byt ve vlastnictví s dispozicí 2+kk s balónem a sklepem na adrese Tmaň č.p. 178, nedaleko Králova Dvora. Chcete bydlet v prostorném bytě v klidné lokalitě, s dobrou dostupností do Prahy, Králova Dvora, Berouna nebo Plzně? Nebo chcete investovat do bytu vhodného pro dlouhodobý pronájem? Máme pro vás jedinečnou nabídku! O nemovitosti: •Adresa: Tmaň č.p. 178 •Dispozice: 2+kk •Rozloha: 50 m² + balkón 5 m² + sklep 1 m² •Umístění: 4. patro (5. nadzemní podlaží) v revitalizovaném bytovém domě s výtahem •Vlastnictví: Osobní (možnost financování hypotéčním úvěrem) •Parkování: v okolí domu je mnoho volných parkovacích míst •Sklep: 1 m² úložného prostoru suterénu domu Přednosti bytu: •Prostorný obývací pokoj s kuchyňským koutem: Ideální pro rodinná setkání a pohodlný život •Samostatná ložnice: Zajišťují soukromí a klid •Sklep: jako úložný prostor •Parkování: máte jistotu, že vždy zaparkujete. •V bytě jsou vyšší stropy a byt tak působí velmi vzdušně. Investiční příležitost: •Vhodné pro vlastní bydlení i jako investice. •Atraktivní nájmy: Potenciál pro stabilní a zajímavý příjem z pronájmu Financování: •Byt je v osobním vlastnictví: Nákup lze financovat hypotečním úvěrem Neváhejte a domluvte si prohlídku ještě dnes! Kontaktujte nás pro více informací a přijďte se přesvědčit, že tento byt je tím pravým místem pro váš nový domov nebo investici. Vaše vysněné bydlení čeká právě na vás!

