Prodej - dům/vila, 177 m²
Prodej pozemku s rozestavěnou stavbou (budova pro administrativu) a zahradním domkem, Kozly u Tišic
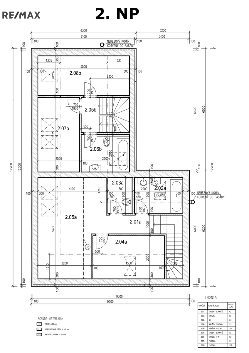
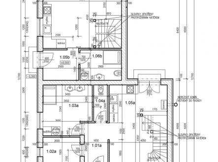
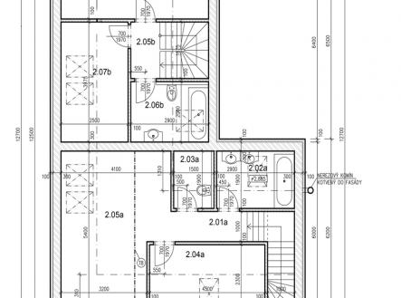
V exkluzivním zastoupení majitele nemovitosti Vám nabízíme prodej stavebního pozemku o celkové výměře 495 m2 s rozestavěnou stavbou "budova pro administrativu" a zahradní domek, nacházející se v k.ú. Kozly u Tišic, obec Tišice. Kozly je klidná a malebná část obce Tišice, která se nachází ve Středočeském kraji, v okr. Mělník. Leží nedaleko města Neratovice, Mělník a zhruba 25 km od hranice Prahy. Díky své poloze v dojezdové vzdálenosti do hl. města je ideální pro ty, kteří hledají spojení venkovského klidu s dostupností městské infrastruktury. Dopravní obslužnost je velmi dobrá. Přímo v obci se nachází železniční stanice Tišice s pravidelným vlakovým spojením do Prahy-Masarykovo nádraží. Dále zajištěna autobusová doprava do okolních měst (Neratovice, Mělník nebo Brandýs n/L). Tišice mají základní, ale velmi kvalitní občanskou vybavenost. Přímo v obci funguje MŠ, ZŠ, zdravotní středisko a lékárna. Dále zde najdete poštu, obchody s potravinami, zeleniny místních farmářů, masnu, cukrárnu, restaurace a služby. Pro volný čas je k dispozici sportovní hřiště i dětská hřiště. Okolí obce je bohaté na přírodní krásy a nabízí ideální podmínky pro volnočasové aktivity. V blízkosti se nachází řeka Labe a cyklostezka, okolní louky a lesy vybízejí k procházkám, jízdě na kole, běhu či rybaření. Lokalita je vhodná nejen pro trvalé bydlení, ale i pro komerční a rekreační využití. Nemovitost se nachází v klidné části centru obce, s okolní zástavbou rodinných domů. Součástí prodeje nemovitosti je: - pozemek o celkové výměře 495 m2 - rozestavěná stavba "budova pro administrativu" s užitnou plochou 156,8 m2 (1. NP 78,4 m2, 2. NP) - stavba zahradní domek s užitnou plochou 20 m2 - inženýrské sítě na pozemku a zavedeny do budovy: elektřina s osazením hodin, obecní vodovod, podtlaková kanalizace Dle územního plánu Tišice se jedná o pozemek pro využití výstavby "BI" - bydlení individuální. Přístupová cesta aktuálně ve vlastnictví prodávajícího, možnost zajištění věcného břemene chůze a jízdy. Charakteristika hlavní budovy: Jedná se o zděnou dvoupodlažní budovu bez podsklepení. Budova postavena z Ytong 30 cm + 15 cm zateplení bílý polystyren, dále nataženo do lepidla. Střešní krytina Mediterran - terran Zenit, vchodové dveře, okna a balkónové dveře zn. Veka. Vytápění a ohřev vody plánované elektřinou. Energetický průkaz budovy není k dispozici. Pro více informací a sjednání termínu prohlídky neváhejte kontaktovat makléřku nemovitosti. Prodávající si vyhrazuje právo vybrat kupujícího na základě jím zvolených kritérií.


