Prodej bytu, 2+1, 46 m²
Prodej bytu 2+1, 46 m², Teplice, ul. Alejní
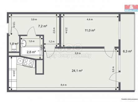
Byt 2+1 o výměře 46 m², který se nachází v ulici Alejní v Teplicích, nabízí skvělou možnost pro každého, kdo hledá dostupnou investici nebo chce vytvořit nové bydlení přesně podle vlastních představ. Jednotka se nachází ve starší, avšak udržované zástavbě, která si zachovala příjemnou atmosféru tradičního městského bydlení. Dům působí klidně, sousedství je stabilní a vše působí upraveným dojmem. Samotný byt je v původním, avšak velmi slušně udržovaném stavu, což budoucímu majiteli poskytuje plnou volnost při plánování rekonstrukce a možnost přizpůsobit dispozice i styl bydlení svým potřebám. Velkou výhodou je umístění nemovitosti. Ulice Alejní je vyhledávanou adresou díky kombinaci klidu a zároveň blízkosti centra města. V docházkové vzdálenosti se nachází veškerá občanská vybavenost – obchody, restaurace, kavárny, lékařské služby, školy i školky. Jen pár minut chůze vás dělí od hlavních teplických ulic a kulturního dění, ale zároveň máte doma dostatek soukromí a klidného prostředí.


