Prodej - dům/vila, 176 m²
RD 6+kk s garáží a zahradou v Těčovicích u Zlína
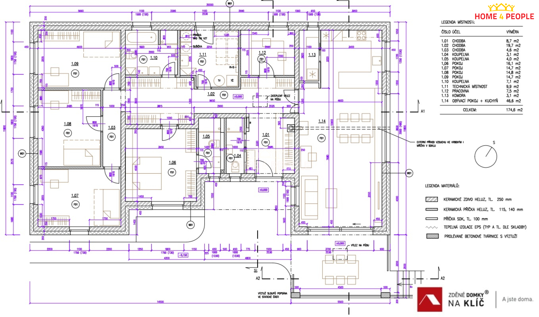
Moderní rodinné sídlo v srdci Tečovic: Prostor, úspora a komfort na klíč Hledáte dokonalé místo pro život své rodiny, kde se potkává moderní architektura s velkorysým prostorem? Objevte projekt nízkoenergetického domu 6+kk v oblíbené lokalitě Těčovice u Zlína. Na slunném, rovinatém pozemku o rozloze 1 364 m² pro vás postavíme dům, který není jen stavbou, ale promyšleným domovem pro 21. století. Čím vás tento dům nadchne? Velkorysý prostor: Dispozice 6+kk s užitnou plochou 175 m² poskytne dostatek soukromí i pro velkou rodinu nebo domácí pracovnu. Chytrá úspora: Díky špičkovým materiálům (Porfix) a tepelnému čerpadlu jsou měsíční náklady až 3x nižší než v běžném bytě. Šetřete tam, kde to dává smysl. Bezstarostná realizace: Dům předáváme kompletně dokončený "na klíč" – včetně podlah, sanity, dveří a kolaudace. Stačí si vybrat kuchyni, svítidla a můžete bydlet. Zahrada snů: Šířka pozemku 24 metrů nabízí nekonečné možnosti pro bazén, terasu nebo dětské království. Lokalita, kterou si zamilujete Tečovice nabízejí veškerý komfort na dosah ruky. Do Zlína dorazíte za pouhých 15 minut, přesto si doma užijete naprostý klid. Mateřská a základní škola v docházkové vzdálenosti. Sportovní vyžití: bazén, fotbalové hřiště, dětská hřiště. Kompletní vybavenost: obchod, restaurace, pošta. Technické standardy & Možnosti Vytápění: Teplovodní podlahové topení a tepelné čerpadlo se zásobníkem na vodu. Flexibilita: Chcete krb, rekuperaci, fotovoltaiku nebo venkovní žaluzie? Žádný problém. Dispozici domu rádi upravíme podle vašich přání. Rychlost: Bydlíte do 12–13 měsíců od vydání stavebního povolení. Cena obsahuje: Pozemek, projektovou dokumentaci, základovou desku, výstavbu na klíč, finální povrchy v interiéru i exteriéru a DPH. Přijďte se přesvědčit na vlastní oči! Máme pro vás připravený detailní projekt a rádi vás provedeme našimi již hotovými domy, abyste si mohli sáhnout na kvalitu naší práce. Kontaktujte našeho makléře ještě dnes a udělejte první krok ke svému novému domovu. Ev. číslo: 32042.


