Prodej - dům/vila, 107 m²
Výjimečný dům na polosamotě s vlastním lesem, loukou a potokem – 6 597 m² soukromí
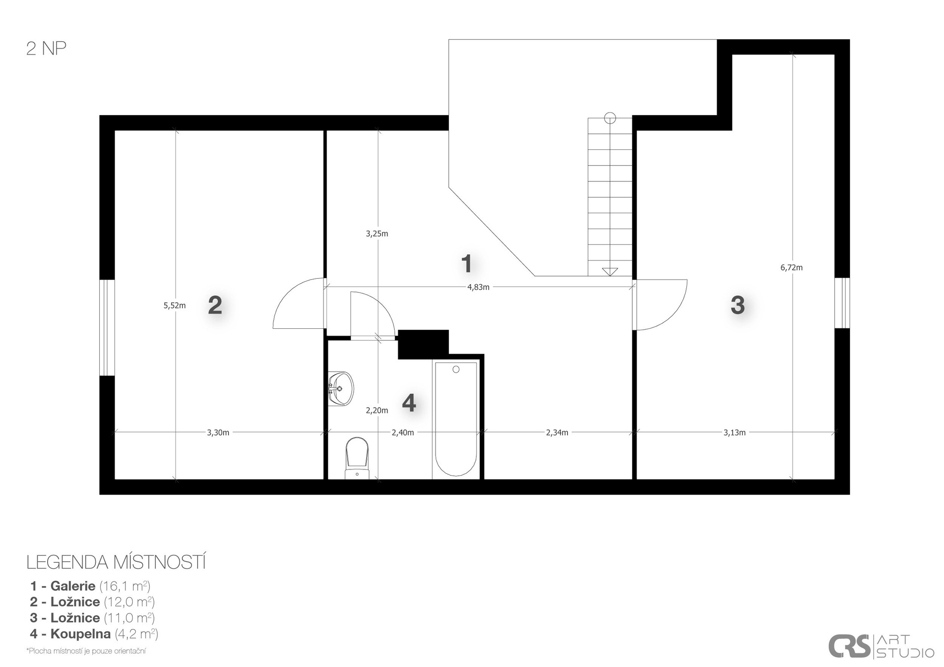
Výjimečný dům na polosamotě s vlastním lesem, loukou a potokem – 6 597 m² soukromí Nabízíme moderní zděný dům (4+KK, 107 m², kolaudace 2011) ve venkovském anglickém stylu, zasazený do vlastního přírodního areálu o rozloze 6 597 m². Pozemkem protéká Pasecký potok, který přirozeně odděluje zahradu a louku od vlastního lesa a vytváří naprosté soukromí a klid. Hlavní přednosti: * Polosamota, příjezd po vlastní lesní cestě * Vlastní les, louka a zahrada – ideální pro soběstačnost či chov zvířat * Zimní zahrada + terasa 18 m² s výhledem do lesa * Světlý otevřený obytný prostor s krbem a podlahovým topením * 3 ložnice, 2 koupelny + sprcha s WC se samostatným vstupem * Vlastní studna (pitná voda) * Vytápění: elektrický kotel + krbová kamna s výměníkem Potenciál využití: * Rodinné bydlení v naprostém klidu * Farmaření, chov koní, včelaření, pěstování * Wellness, terapie, jóga, retreaty * Ateliér nebo podnikání z domova * Možnost umístění tiny house či relaxačních modulů Skvělá dostupnost: * Tábor – cca 10 minut autem * Vlaková zastávka 1 km * Autobus u příjezdu Nemovitost, která spojuje absolutní klid přírody s velmi dobrou dostupností a širokými možnostmi využití. Ideální pro ty, kteří hledají svobodu, soukromí a prostor pro vlastní životní styl i podnikání.

