Prodej - dům/vila, 159 m²
Prodej rodinného domu, 159 m², Svojetice, ul. Na Moklině
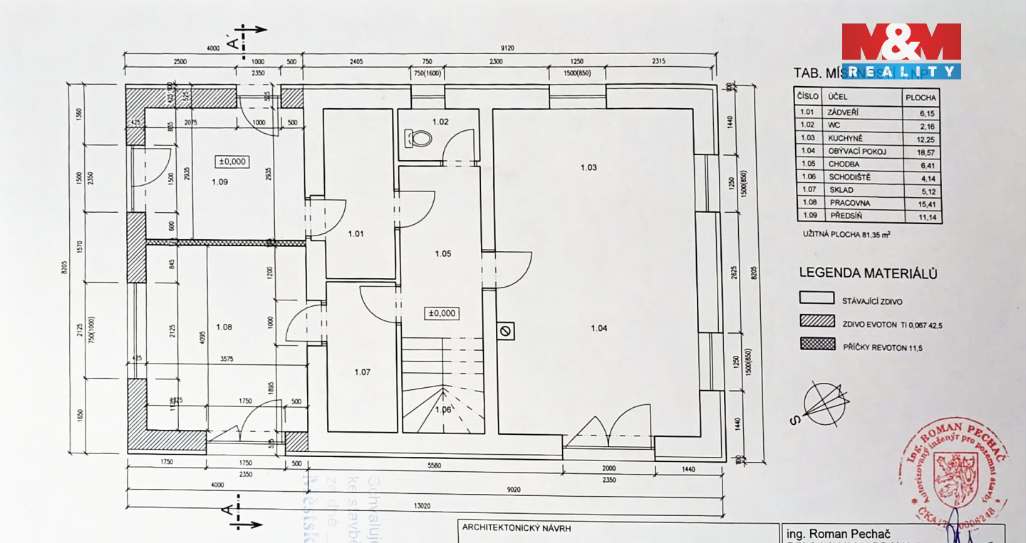
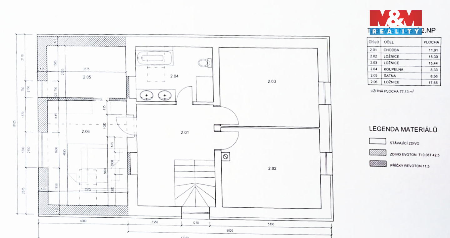
Nabízíme k prodeji velice pěkný, slunný a samostatný rodinný dům 5+kk s terasou, v nadstandardně provedené stavbě z roku 2006, ve Svojeticích u Říčan na P-V. Obytná podlahová plocha místností 159 m2, terasa 18 m2. V přízemí domu se nachází prostorná vstupní hala, předsíň se šatní skříní, WC, sklad, ložnice a velká obývací místnost s kuchyní se spotřebiči Siemens a vstupem přes krásnou pergolu na okrasnou zahradu. V 2.NP se nachází ložnice, 2x dětský pokoj a koupelna s vanou, sprchovým koutem a WC. Velký půdní prostor. Vytápění domu je zajištěno elektrickým kotlem a krbovými kamny na tuhá paliva. Dům je napojen na městskou kanalizaci, vodovod a elektřinu. Na pozemku se nachází bazén s Jacuzzi a zahradní domek s posezením. Většinu hranice zahrady tvoří krásně vzrostlé túje. Kompletní občanská vybavenost - mateřská škola, restaurace, pro koňaře Master Horse Club. Bus zastávka 383, 385,489 jede 45 min. přímý spoj na Prahu - Háje, Opatov. Vřele doporučuji.


