Prodej - dům/vila, 321 m²
Rodinný dům 6+kk, garáž, terasa, FVE, TČ, sauna, vířivka
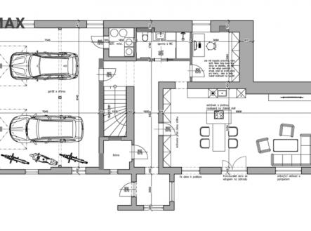
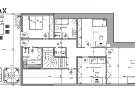
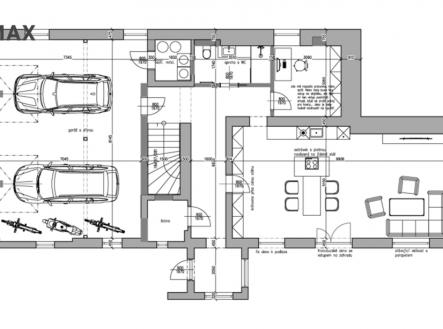
Nabízím k prodeji nadstandardně zrekonstruovaný a energeticky úsporný dům ve Svitavách, který splní i ty nejvyšší nároky na pohodlné bydlení. Tento moderní dům o dispozici 6+kk s užitnou plochou celkem cca 321 m² nabízí vše, co si můžete přát, a to včetně garážování nebo vybavení pro relaxaci a luxusní odpočinek. V ceně dokončeného domu je veškeré základní sanitární vybavení, obklady, podlahy, obložkové dveře, výřivka, sauna, FVE, bateriové úložiště, tepelné čerpadlo, dlažba ne terase. Při koupi domu je možnost odpočtu DPH. Dům je možné koupit i v aktuálním stavu, s výraznou slevou z kupní ceny. V takovém případě je možné získat pro dokončení další slevu formou čerpání dotací na FVE, baterie nebo nabíjecí stanici. Luxus a komfort v každém detailu Užijte si prostorný a vzdušný interiér, kde dominuje velký obývací prostor s kuchyňským koutem o rozloze 51 m². V domě nechybí ani praktická spíš v 1.NP a velmi důležitá šatna ve 2.NP. Nadstandardem jsou 2 koupelny s WC, samostatné WC s bidetem a sauna se sprchou. Dům prošel kompletní rekonstrukcí, což zaručuje, že je vše nové a v perfektním stavu. Stěny i střechy jsou zateplené, podlahy mají podlahové topení a obvodové zdivo je kompletně odizolované. V ceně domu je kompletní dokončení (kromě kuchyňské linky a osvětlení). Máte jedinečnou možnost si vybrat zařizovací předměty dle svého vkusu. Energetická soběstačnost a relaxace Díky fotovoltaickým panelům s výkonem 8,1 kW a bateriovému úložišti je dům maximálně energeticky úsporný. Navíc, o úsporné vytápění se postará tepelné čerpadlo LG. Po náročném dni si dopřejte odpočinek na terase a ponořte do venkovní vířivky Wave o rozměru 220 x 220 cm. V chadných nebo mrazivých dnech Vás velmi potěší pobyt ve vnitřní finské sauně Marimex. Terasa o rozloze 44 m² ve druhém patře navíc nabízí dostatek prostoru pro venkovní kuchyň, posezení nebo relaxační lehátka. Pro lehké sportovní vyžití a volný čas je k dispozici okrasná zahrada s bazénem. Velkorysý prostor a praktičnost Dispozice 6+kk nabízí dostatek prostoru pro Vás i Vaše podnikání, pro větší rodinu nebo pro případné návštěvy. Využijte místosti dle vlastních potřeb. Dům disponuje také velkou garáží pro dvě auta (64 m²), se dvěma sekčními vraty. Garáž zároveň nabízí další prostor pro motorky, kola nebo dílnu. V technické místnost přístupné z garáže je umístěno veškeré technické zařízení pro provoz domu. Pro milovníky elektromobility je zde připravena nabíjecí stanice pro elektrovozidlo. Celkově dům a parkovací stání nabízí prostor až pro 4 automobily. DPH Nabídková cena nemovitosti je včetně DPH. Pro případný nákup domu pro firmu, která je plátcem DPH, je možný odpočet. Nenechte si ujít tuto výjimečnou nabídku a domluvte si prohlídku, abyste se mohli na vlastní oči přesvědčit o kvalitě a pohodlí tohoto domu. Jsem si jistý, že si ho zamilujete. Ve fotografiích jsou použity ilustrativní obrázky alternativních zařízení místností.

