Prodej - obchodní prostor, 628 m²
Výnos až 8,5%, investiční dům v srdci Šumavy. KORUNA , o výměře 658m2. V Sušici na náměstí.
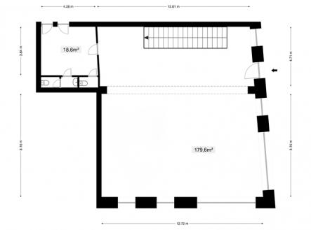
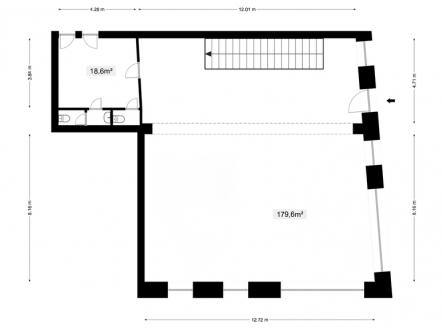
Dům s příběhem. Stabilní výnos až 8,5% ročně podle využití. . Luxusní prostor k využití. V samém srdci malebné Sušice, na jejím historickém náměstí, stojí budova, kterou místní dobře znají – dům Koruna. Nese v sobě odkaz doby, kdy byl obchod a bydlení úzce propojeno s centrem města. A dnes? Koruna je výjimečný dům, který byl v minulosti kompletně zbourán a v roce 2003 znovu postaven jako moderní víceúčelový objekt s respektem k původnímu charakteru místa. V roce 2014 byla dokončena i podkrovní bytová jednotka – luxusní byt 3+kk s galerií, který může sloužit k bydlení, podnikání, nebo krátkodobému ubytování na špičkové úrovni. Celková výměra domu činí 628,52 m² rozdělených do tří plnohodnotných podlaží: 1. NP (202,10 m²) – 2. NP (190,40 m²) zavedený obchodní prostor, aktuálně dlouhodobě pronajatý silnému nájemci z oblasti maloobchodu 3. NP (236,02 m²) – luxusní byt 4+kk s velkorysým prostorem, galerií a výjimečnou atmosférou K domu náleží 1/14 podílu na uzavřeném dvoře a parkovišti, které jsou v této lokalitě obrovskou výhodou. Proč právě Sušice? Sušice je žádaná lokalita po celý rok – brána Šumavy, oblíbený výchozí bod turistů, cyklistů, rodin i seniorů. Historické centrum žije, lidé sem jezdí nejen na dovolenou, ale i za službami, gastro scénou a nákupy. A právě dům Koruna je součástí tohoto živého organismu – přímo na náměstí, na místě s vysokou průchodností a viditelností. Pro investora, který umí spojit výnos s lokalitou, jde o mimořádnou příležitost.

