Pronájem - obchodní prostor, 112 m²
Pronájem obchodního prostoru 112 m2 Gen. Svobody, Šumperk
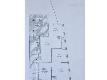
Hledáte prostor pro své podnikání v samotném centru Šumperka? Na adrese Gen. Svobody 10, přímo na pěší zóně a jen pár kroků od hlavní pošty, nabízíme k pronájmu nebytové prostory o rozloze 112 m. Skvěle dispozičně řešený prostor se skládá ze tří místností, které nabízejí dostatek variability ať už hledáte místo pro obchod, kancelář, studio, showroom nebo služby. Velkou výhodou je frekventovaná poloha přímo v centru města viditelnost i dostupnost pro vaše zákazníky je zaručena. V okolí najdete veškerou občanskou vybavenost, další obchody i kavárny, což z tohoto místa dělá ideální podnikatelský bod. Výhodou je i dobrý technický stav budovy a přístup z hlavní pěší tepny města. Cena pronájmu je 22 400,-Kč/měsíčně. Individuální podmínky lze dohodnout podle charakteru podnikání. Máte zájem se přijít podívat nebo se dozvědět víc? Neváhejte mě kontaktovat.


