Prodej bytu, 2+1, 55 m²
Prodej byt 2+1, 55㎡
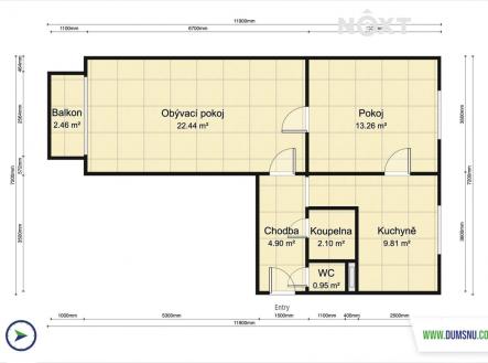
Cihlový byt s výbornou polohou a jistým investičním potenciálem? Tato 2+1 spojuje klidné bydlení s blízkostí centra města. Byt s celkovou výměrou 55 m² se nachází ve 4. nadzemním podlaží udržovaného cihlového domu bez výtahu. Prošel rekonstrukcí a je připraven k okamžitému užívání nebo k pronájmu. Z vstupní chodby se dostanete do kuchyně, koupelny a samostatného WC, dále do obývacího pokoje s balkonem. Další pokoj je průchozí z obývacího pokoje i kuchyně. K bytu náleží také sklepní kóje. Vytápění i ohřev vody jsou řešeny centrálně z teplárny, což zaručuje pohodlný a úsporný provoz. Lokalita je skvělá - v docházkové vzdálenosti najdete obchody, služby i centrum města. Parkování je možné přímo před domem. Díky své poloze, dispozici a nízkým provozním nákladům je byt ideální jak pro vlastní bydlení, tak jako zajímavá investiční příležitost. Neváhejte a domluvte si prohlídku – ráda Vám byt osobně představím! V rámci našeho realitního a finančního servisu Vám rádi pomůžeme i s nejvýhodnějším financováním nákupu. Pro komunikaci uvádějte evidenční číslo zakázky N114822.


