Prodej - dům/vila, 247 m²
Prodej novostavby RD 286 m2 + 79 m2 terasa, pozemek 1173 m2, Sulice-Hlubočinka, okres Praha východ.
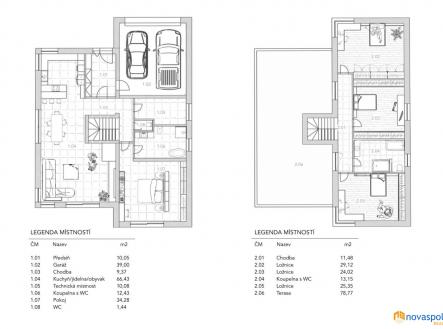
Prodej novostavby rodinného domu 286 m2 + 79 m2 terasa, pozemek 1173 m2, Sulice - Hlubočinka, okres Praha východ. Jedná se o novostavbu o dispozici 5+kk s užitnou plochou 247 m2 + 39 m2 garáž pro 2 auta + terasa 79 m2. RD je nabízen ve stavu white walls, umožňujícím finální dokončení dle vlastních představ.Novostavba je postavena ve vysokém standardu:Dům je nízkoenergetický, PENB A. ✅ podlahové topení v celém domě✅ v přízemí mramorové podlahy, mramorové obklady ve 2 prostorných koupelnách✅ garáž pro dvě auta✅ tepelné čerpadlo se zásobníkem na teplou vodu✅ prostorná terasa ✅ trojitá skla v oknechPřízemí: garáž pro 2 vozidla, technická místnost s tepelným čerpadlem a zásobníkem na vodu, velký obývací pokoj s prostorem pro jídelnu a s přípravou na kuchyni se vstupem na zahradu, pokoj, koupelna s WC, 1 x WC samostatně Patro: chodba s 2 vstupy na terasu, koupelna s WC a 3 pokoje✅ 5 min pěšky Adventure school, soukromá základní škola a mateřská škola s rozšířenou výukou jazyků✅ V obci také státní školka a škola✅ Sportovní centrum Hlubočinka s wellness a finskou saunou✅ 4 min autem supermarket Lidl✅ Vynikající poloha v těsné blízkosti lesa✅ Dopravní dostupnost do Prahy městskými autobusy na metro C Budějovická✅ V Jesenici Sunny Canadian International School, která provozuje mateřskou školku,základní školu a gymnázium


