Prodej - dům/vila, 146 m²
Prodej srubového rodinného domu se zahradou, celková rozloha pozemku 2.187m², Studnice - Řešetova Lh
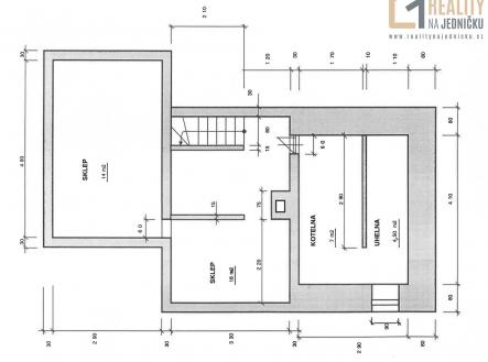
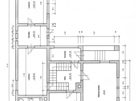
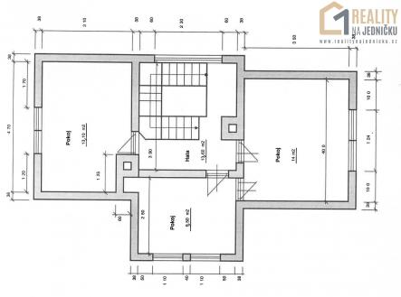
Ve výhradním zastoupení pro Vás máme exkluzivní nabídku dvojpodlažní podsklepené srubové stavby určené k rekonstrukci, která se nachází pouhé čtyři kilometry od Náchoda v dosahu přehrady Rozkoš, Dvora Králové se svou Safari Zoologickou zahradou a rekreačních sředisek Orlických hor, Krkonoš a Adrššpašsko-teplických skal ! V obci Řešetova Lhota se nachází na klidném místě velmi zvláštní malebný dřevěný rodinný dům s užitnou plochou 146 m² a prostornou terasou, ideální pro relaxaci a grilování v letních dnech. Dům je vhodný i pro početnější rodinu. Tento dům se nachází na pozemku o rozloze 2.187 m², který poskytuje dostatek prostoru pro zahradní party , zahrádkářské aktivity a nabízí i tři samostatně stojící kolny. Sklep domu je vystavěn ze smíšeného zdiva (kámen,cihla,beton) s železobetonovým stropem. Přízemí a patro domu tvoří srubový základ s venkovním obložením (dřevo, izolační panely z hobry a polystyrenu) a dřeveným trámovým stropem. Střecha domu je ze dřeva, pokrytá eternitovými šablonami. V přízemí domu se nachází vstupní veranda s halou, dále kuchyň, obývací pokoj, dvě ložnice, chodba a koupelna s toaletou. V patře pak dětský pokoj, pracovna a ložnice. Součástí domu je také sklep s kotelnou a uhelnou o rozloze 37 m², který nabízí dostatek úložného prostoru. Tato nemovitost je ideální pro rodinné bydlení nebo jako rekreační objekt v krásném a klidném venkovském prostředí. Nezmeškejte tuto jedinečnou nabídku! Na Vaše dotazy odpoví a prohlídky domu Vám velmi rád zprostředkuje realitní makléř Mgr. Radek Procházka


