Prodej bytu, 4+1, 105 m²
Prodej bytu 4+1 105 m2 Masná, Studená
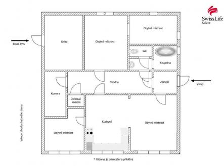
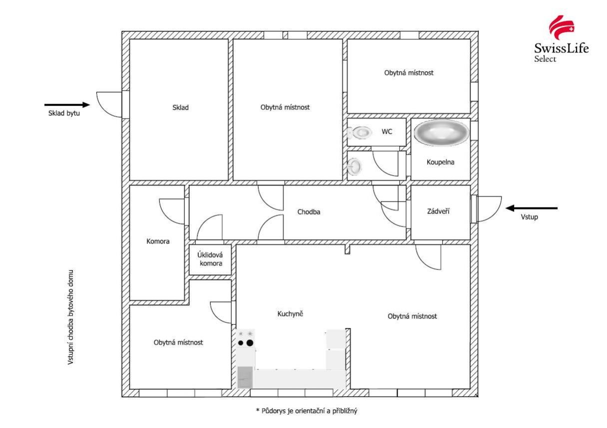
Přináším možnost pořídit si opravdu velký byt o dispozici 4+1 a ploše přibližně 105 m s vlastním vstupem nacházející se v přízemí 3-podlažního bytového domu na ulici Masná v obci Studená. Bytová jednotka je velmi prostorná a dobře prosvětlená díky pozici větších obytných místností na jihovýchodní stranu. Menší obytné místnosti mají okna na severní a východní stranu. K bytu náleží i sklad 15 m přístupný z chodby bytového domu. Vytápění je centrální teplovodní s měřidly na radiátorech. Obec Studená se nachází přibližně na půli cesty mezi Jindř. Hradcem a Telčí. Občanská vybavenost je velmi dobrá a zahrnuje např. mateřskou a základní školu, knihovnu, obecní úřad s matričním a stavebním úřadem, poštu, bankomat, obchody s potravinami, oblečením a domácími potřebami, zdravotní středisko, lékárnu, čerpací stanici, sportovní areál s fotbalovým hřištěm a tenisovými kurty atd. Pro domluvení prohlídky zavolejte nebo vyplňte formulář.


