Prodej - dům/vila, 220 m²
Hradové Střímelice, prodej rodinného domu 220 m², pozemek 2 215 m²
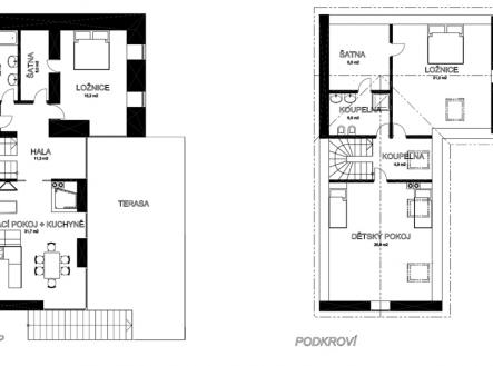
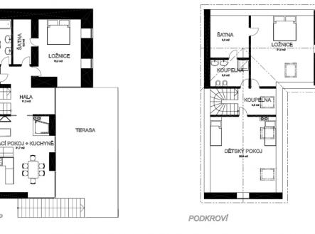
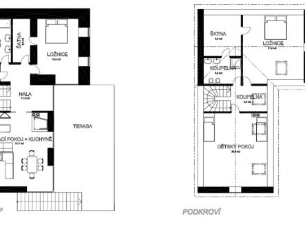
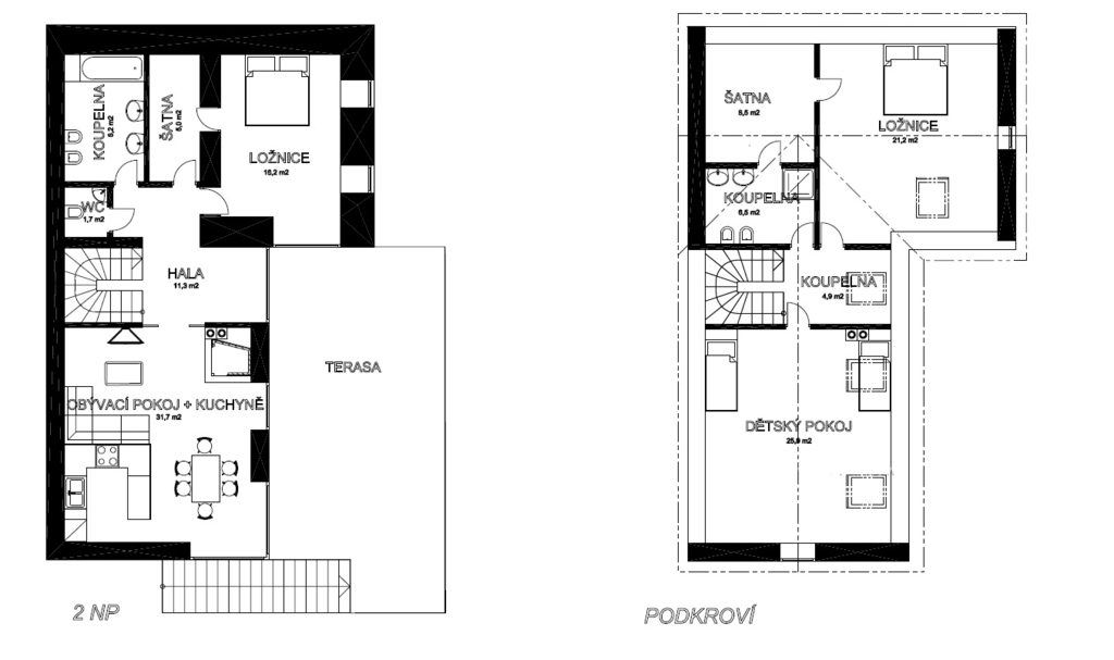
Nabízíme ke koupi rodinný dům o dispozici 4+kk a 2+kk s užitnou plochou 220 m², který se nachází na rozlehlém a slunném pozemku o velikosti 2 215 m² v malebné lokalitě Hradové Střímelice, část obce Stříbrná Skalice (okres Praha-východ). Dům byl budován postupně s důrazem na kvalitu a promyšlené řešení detailů. Je postaven z cihelného zdiva Heluz Supertherm 36,5 cm s tepelnou izolací 14 cm polystyrenu a osazen eurookny s trojskly. Je připraven k dokončení podle představ nového majitele – nabízí tak možnost doladit interiér přesně podle vlastního vkusu. Dispozice: 1. podlaží (přízemí) – samostatná jednotka 2+kk, technické zázemí, sklad/sklep 30 m² (plocha sklepa není započítána do celkové užitné plochy) 2. podlaží – počítá se s obývacím pokojem s kuchyňským koutem (31,7 m²), ložnicí (16,2 m²), koupelnou, samostatným WC a vstupem na terasu 3. podlaží (podkroví) – počítá se se dvěma ložnicemi (25,9 m² a 21,2 m²), šatnou (8,5 m²) a koupelnou Vytápění zajišťuje elektrokotel. V 1. podlaží je instalováno podlahové topení, s nímž se počítá i ve 2. podlaží; v podkroví je příprava pro radiátory. Dům je napojen na vodovod i vlastní studnu, odpad bude řešen čističkou odpadních vod (ČOV). Další výhody: Velkorysý pozemek 2 215 m² s dostatkem prostoru pro zahradu, bazén nebo relaxační zónu Klidná část obce s minimálním provozem a dostatkem soukromí Veškerá občanská vybavenost v nedaleké Stříbrné Skalici a Ondřejově (škola, školka, obchody, restaurace, služby) Dobrá dostupnost do Prahy – autem či autobusem do Strančic, odkud vlakem na hlavní nádraží Praha cca 34 minut Shrnutí: Dům, který nabízí prostor, klid a možnost dotvořit si domov podle vlastních představ. Ideální pro ty, kdo hledají kvalitní rodinné bydlení v přírodě, přitom v pohodlné dojezdové vzdálenosti od Prahy.


