Prodej bytu, 3+1, 77 m²
Prodej bytu, 3+1, 77 m²
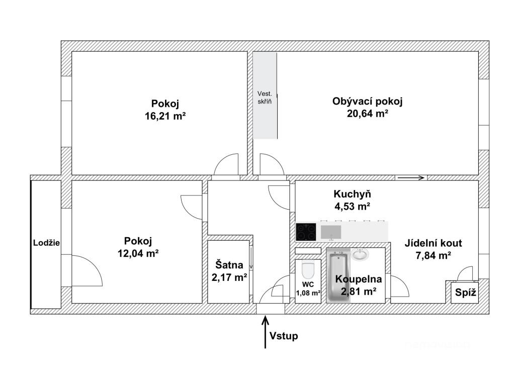
Hledáte stylové a praktické bydlení bez nutnosti dalších investic? Tento byt o dispozici 3+1 a podlahové ploše 77 m² vás zaujme nejen rekonstrukcí, ale i promyšleným dispozičním řešením a skvělou polohou v přízemí. Dispozice: • Vstupní chodba s úložnými prostory (2,7 m²), které zvenku působí jako vestavěná skříň – ideální pro kabáty, boty i domácí potřeby • Dva neprůchozí pokoje – vhodné jako ložnice, dětský pokoj nebo pracovna • Obývací pokoj se vstupem jak z kuchyně, tak z chodby – možnost propojit i oddělit podle nálady • Samostatná kuchyně s nadstandardní kuchyňskou linkou na míru • Koupelna s vanou • Samostatné WC • Balkon – ideální pro ranní kávu nebo posezení na čerstvém vzduchu Venkovní žaluzie zajišťují soukromí, tlumí hluk i prach z okolí. Byt má zděné jádro a je po kompletní rekonstrukci, stačí se jen nastěhovat. Přízemní umístění potěší jak rodiny s dětmi, tak seniory. Byt se nachází v klidné části Strážnice s výbornou dostupností a plnou občanskou vybaveností v docházkové vzdálenosti. Zaujala vás tato nabídka? Zavolejte a domluvte si prohlídku – tento byt vás přesvědčí naživo ještě víc!


