Pronájem bytu, 3+kk, 58 m²
Pronájem bytu 3+kk, 55 m2, lodžie/sklep - ul. Sokolovská-Strakonice
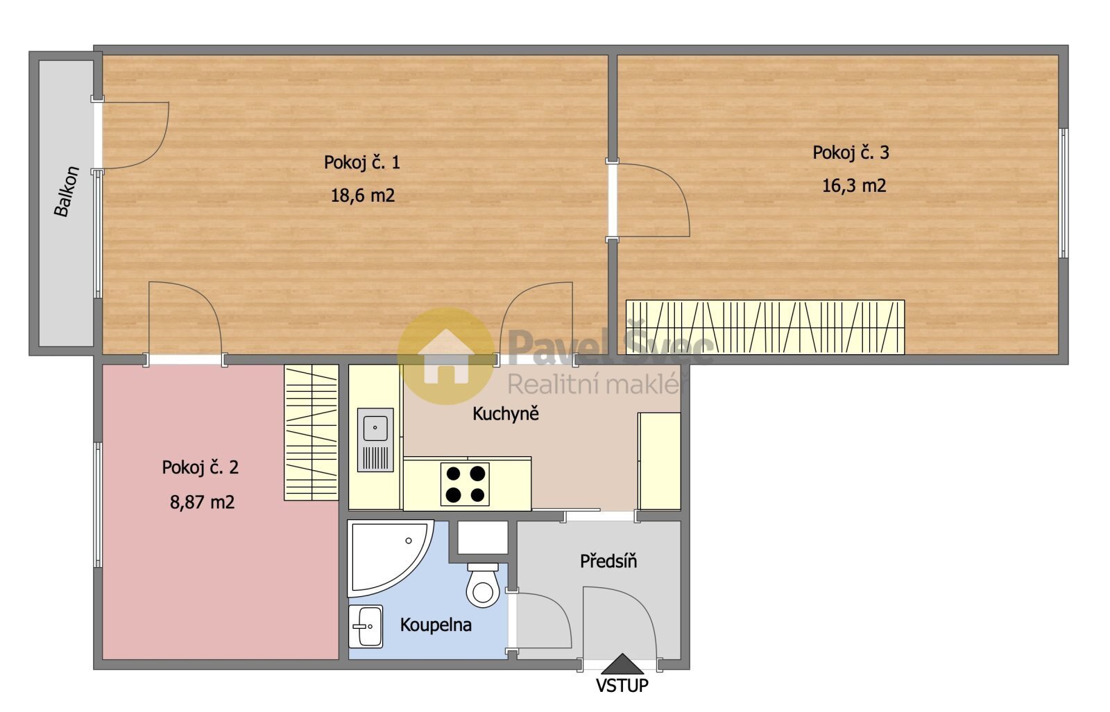
Nabízím k pronájmu velmi pěkný renovovaný byt 3+kk, 55 m2 s lodžií a sklepem ve 4. patře zděného domu s výtahem v centru města Strakonice. Vkusně a precizně renovovaný byt s koupelnou se sprchovým koutem, moderní kuchyní vybavenou spotřebiči (pračka, sklokeramická varná deska, pečící trouba, digestoř a přípravou pro umístění myčky). V pokojích jsou k dispozici praktické skříně. Na podlahách v pokojích renovované parkety, jinak lino a dlažba. Plastová okna orientovaná na východ (lodžie) a západ (pohled na město-centrum). K dispozici prostorný sklep, společné prostory domu (kolárna apod.) a uzavřený dvorek. Byt je obratem k dispozici. V případě zájmu kontaktujte makléře nabídky nejprve mailem, děkuji. Poplatky: nájemné 11.000 Kč; služby 5.213 Kč; elektřina na nájemce; kauce 24.000 Kč, odměna RK 13.310 Kč vč. DPH.

