Prodej - dům/vila, 270 m²
Nabízíme vám dům po rekonstrukci vnitřních prostor o 2 bytových jednotkách ve Strachotíně.
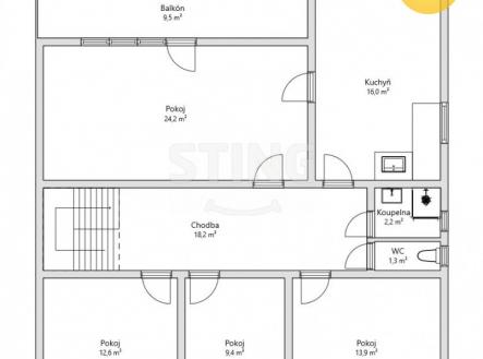
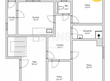
Prodej prostorného rodinného domu po částečné rekonstrukci vnitřních prostor – Strachotín Nabízíme k prodeji patrový rodinný dům v klidné části obce Strachotín, která se nachází nedaleko Brna a má výbornou dopravní dostupnost – dojezd do Brna je do 30 minut. Dům prošel rekonstrukcí všech rozvodů (elektřina, voda, plyn), oken, dveří, omítek i podlah. Koupelny jsou rovněž po rekonstrukci. V 1. NP se nachází bytová jednotka o dispozici 3+1, ve 2. NP byt o velikosti 4+1. Díky dispozičnímu řešení je možné dům rozdělit na dvě samostatné bytové jednotky, každou s vlastním vstupem – ideální řešení pro dvougenerační bydlení nebo investici. K domu náleží zahrada o celkové výměře 615 m², která nabízí dostatek prostoru pro odpočinek i rodinné zázemí. Dům je ve velmi dobrém stavu, stačí jej dovybavit a můžete se okamžitě nastěhovat. V budoucnu je možné dům zateplit či vyměnit střechu s využitím dotace z programu „Oprav dům po babičce“. Technické informace: Typ budovy: cihlová, samostatně stojící Počet podlaží: 2 Užitná plocha: 270 m² Zastavěná plocha: 137 m² Pozemek: 615 m² Počet pokojů: 8 Stav: velmi dobrý, po rekonstrukci 2024 Střecha: pultová, krytina IPA Topení a ohřev vody: plynový kondenzační kotel Inženýrské sítě: elektřina (230/380 V), plyn, vodovod, kanalizace Energetická náročnost: G (mimořádně nehospodárná) občanská vybavenost: V obci je škola, školka, pošta, zdravotnické zařízení a další služby. Dopravní dostupnost zajišťuje silnice a autobusové spojení.


