Prodej - pozemek pro bydlení, 974 m²
Prodej pozemku o rozloze 974 m2, s platným stavebním povolením a projektem RD, Štíty - Heroltice
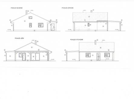
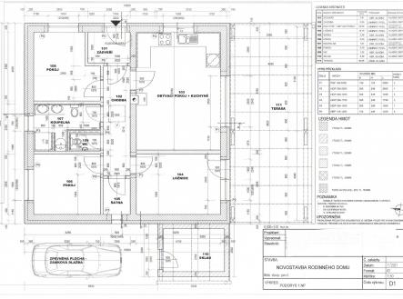
Prodej pozemku pro bydlení, s platným stavebním povolením a vypracovaným projektem přízemního rodinného domu se sedlovou střechou, o dispozici 4+kk s terasou a zpevněnou parkovací plochou pro 2 automobily. Stavbu je možné okamžitě zahájit. Jedná se o pozemek o celkové rozloze 974 m2 ve tvaru písmene L, delší část o šíři 68 m přiléhá k cestě. Pozemek sestává ze dvou parcel o výměrách 194 m2 (na KÚ vedená jako zastavěná plocha a nádvoří) a 780 m2 (na KÚ vedená jako trvalý travní porost), z nichž 112 m2, navazujících na stavební parcelu je vyjmuto z půdního fondu. Pozemek je rovinatý, skýtá krásný výhled do širokého okolí. Na pozemku je nově zbudovaná přípojka elektřiny a vodovodní přípojka. Plyn a kanalizace v této části obce není, v projektu RD je počítáno s jímkou odpadních vod, pro vytápění s kombinací elektrického kotle a krbu s výměníkem. Podrobné informace k projektové dokumentaci jsou k dispozici v RK. Společnost ČEZ plánuje instalaci nového vedení vysokého napětí mezi obcemi Horní Heřmanice a Králíky, které by mělo vést i přes jeden z prodávaných pozemků, nicméně v dostatečné vzdálenosti - respektující ochranné pásmo - od místa, určeného pro výstavbu RD. Umístění nejbližšího sloupu pro vedení VN je plánované ve vzdálenosti 120 m os pozemků. Výkres plánované trasy el. vedení, včetně plánovaného umístění sloupů, je k dispozici v RK. Město Štíty leží na východním výběžku Orlických hor a současně nedaleko jesenického podhůří. Přímo v části obce Heroltice, ve které se pozemek nachází, je k dispozici restaurace s penzionem, kulturní dům, kostel a menší lyžařský vlek, větší lyžařské středisko Buková Hora - červená Hora/Čenkovice je vzdálené 3 km od Heroltic. Ve Štítech jsou pak k dispozici další obchody, služby, mateřská a základní škola, informační centrum, skautský oddíl, TJ Sokol a další zájmové kroužky a také Acrobat park Aleše Valenty. V širším okolí je pak mnoho zajímavých, atraktivních míst, vyhledávaných turisty, cyklisty, i sportovci, lyžařský resort Dolní Morava s bobovou dráhou, Stezkou v oblacích, visutým mostem Sky Bridge 721, atd., je vzdálený přibližně 25 km. Nemovitost je tedy vhodná pro výstavbu objektu určeného k trvalému bydlení, k rekreaci i k investici - objektu k turistickým pronájmům.


