Prodej - dům/vila, 103 m²
Prodej domu 4+kk - 103 m2, zahrádka 70 m2 Stehelčeves
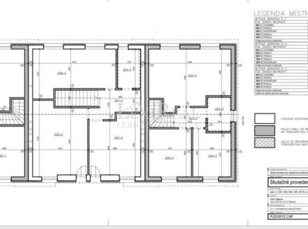
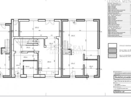
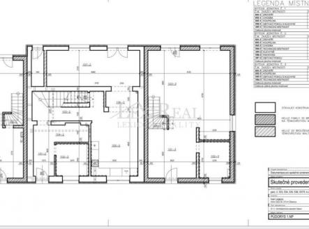
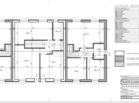
Dovolujeme si vám nabídnout nově dokončený dům 4+kk o užitné ploše 103 m2 v řadovém bytovém domě se zahrádkou 70 m2 ve Stehelčevsi v ulici Řánkova. Dům je situován ve staré zástavbě a slepé ulici. Dům je rozdělen do dvou podlaží, 1 NP a 2NP. V domě jsou 2 koupelny, 2x WC a technická místnost. Stavba je zateplena, vytápění a ohřev vody zajišťuje plynový kotel. V obývacím pokoji a ostatních obytných pokojích a kuchyni je plovoucí podlahová krytina. V koupelně a zádveří je dlažba. Dům je napojený na kanalizační přípojku, elektřinu, plyn a vodovod. Lukrativní poloha domu ve slepé ulici poskytuje dostatečné soukromí a klid k příjemnému bydlení. Kompletní občanská vybavenost a dopravní obslužnost (PID, Praha D7).


