Prodej - dům/vila, 170 m²
Prodej novostavby rodinného domu 170 m², pozemek 1873 m² Štěchovice - Třebenice
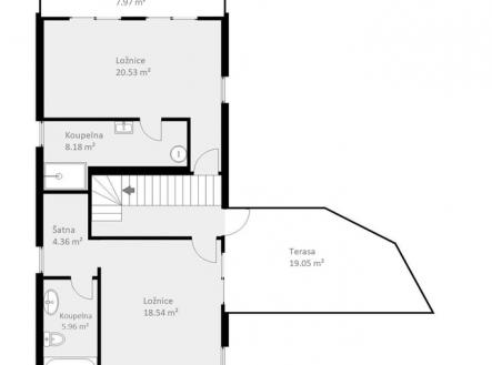
Prostředí, ve kterém žijeme nás zásadním způsobem ovlivňuje. Panenská příroda, čistý vzduch a dechberoucí panoramatické výhledy v každém ročním období. Pokud hledáte bydlení s těmito parametry, neváhejte a domluvte si prohlídku této unikátní nemovitosti. Novostavba rodinného domu o dispozici 5+kk a užitné ploše 170 m² je zasazena na prostorném pozemku o velikosti 1873 m², který jednoznačně splňuje nároky na klidné a moderní bydlení v přírodě. Jižní orientace pozemku zajišťuje dostatek denního světla a zároveň maximální soukromí. Pocit nekonečné dovolené podtrhne bazén o velikosti 3x7 m s panoramatickým výhledem. V přízemí domu se nachází prostorný obývací pokoj, kuchyň s jídelnou a dvě ložnice s koupelnou a toaletou, všechny tyto prostory mají přímý vstup na rozlehlou terasu. V patře jsou dvě prostorné ložnice, každá s vlastní koupelnou a toaletou a vlastním vstupem na balkon, respektive terasu. Prostory k uskladnění nabízí půda. Technická místnost, prostorná komora a šatna jsou k dispozici ve vstupní části přízemí, rovněž dvě krytá parkovací stání. V pěší vzdálenosti od přístavu na Slapské přehradě je tato lokalita ideálním místem pro milovníky vodních sportů a relaxace v přírodě. Zároveň je místo velmi dobře dostupné, v bezprostřední blízkosti domu se nachází autobusová zastávka s přímým spojením na Smíchovské nádraží, které netrvá déle než 45 minut. Automobilem je cesta do centra Prahy zvládnutelná do 30-ti minut. Dům je připraven k okamžitému nastěhování. K nemovitosti je možné dokoupit sousední stavební pozemek o velikosti 2057m2. V případě zájmu se prosím na mě neváhejte obrátit. Prodávající si vyhrazuje právo vybrat kupujícího na základě jím zvolených kritérií.

